立即预约 立即预约
免费定制整装家居

免费定制整装家居

一站置家 全程无忧 一省到底
hide.png

当前位置: 首页 > 装修案例效果图 > 万众花园|现代风格

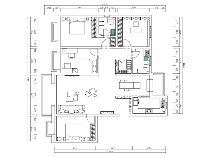
万众花园|现代风格 150平 现代简约风格效果图

收藏
案例风格 现代简约 案例户型 二居 案例面积 150平米
楼盘名称 万众花园 设计师 林凤设计师 案例类型 改善性住宅

设计理念:设计师整体设计理念:本设计方案以现代风格为主,以自然肌理的材质为主,同时将颜色的配比融进材料中,延续硬装色系,让自然的材质呈现出本来的面貌及温润的气质,让时间在空间中留下应有的痕迹,使空间体验更独特打造一个有温度有故事的家。

客厅.jpg

客厅说明:设计师将阳台处打通纳入到客厅之中,扩展了空间格局,使空间视野更加通透、纵深感十足。与此同时,将自然光引入到室内,使空间拥有了绝佳的采光。

餐厅.jpg 餐厅2.jpg

餐厅说明:客厅与餐厅互为对话,充沛的阳光漫溢进来,构造出一幅自然归隐的安静画作,桌面葱郁绿植碰撞张弛有度的线条,缔造绵延的自然之境,以景入情,勾勒出对日常生活的珍视。

客卧.jpg 客卧2.jpg 主卧.jpg 主卧2.jpg 客卧3.jpg

卧室说明:木质地板的温润,让整个主卧空间显得丰润而有温度。简洁利落的柜体收纳,让空间看起来整齐宽敞,给人带来更多的放松之感,床品和窗帘颜色统一色调,相互呼应。将现代风格进行到底。

客卫2.jpg 主卫.jpg 主卫2.jpg 客卫.jpg

卫生间说明:卫生间空间大,打造超长大台面,配灰色系墙砖使整个空间大气宽敞明亮。干湿分离的设计使整体的使用更加舒服。

厨房.jpg 厨房2.jpg 厨房3.jpg

厨房说明: 橱柜选用暖白色系板材,台面选用白色大理石作为过渡提亮空间,厨房空间整体的色系统一,使得整体的空间大气明朗,橱柜的底部灯光搭配的整体色系起到了画龙点睛的作用。

衣帽间.jpg 衣帽间2.jpg 衣帽间3.jpg

衣帽间:浪漫、私密、舒适,是女孩对于衣帽间的需求。不同于外面粉粉绒绒的少女感,这里温馨又私享,可以容纳她出门前的一万个理由。

衣帽间.jpg 衣帽间2.jpg 衣帽间3.jpg 方案图.jpg

案例设计师

林凤设计师

设计师:林凤设计师

从业时间:9年

设计理念:以人为本,一切围绕着生活来创造更佳的生活品质。

预约设计师

算算你家装修多少钱

报名即享丰厚赠品,享半价装修

免费报价
咨询热线:400-656-9909
20190221103704574636.jpg

精品设计案例

20180612134930523248.jpg 服务号二维码.jpg