立即预约 立即预约
免费定制整装家居

免费定制整装家居

一站置家 全程无忧 一省到底
hide.png

当前位置: 首页 > 装修案例效果图 > 江南时代

江南时代 88平 现代简约风格效果图

收藏
案例风格 现代简约 案例户型 二居 案例面积 88平米
楼盘名称 江南时代 设计师 林凤装饰设计师 案例类型 改善性住宅

设计理念:本案位于园区江南时代。主人简单舒适的现代简约风格。本案以米色与浅灰色为基调,通过蓝色与橙色搭配,让本来平淡的空间变得生机勃勃,既不失简洁,又不显得平淡。

客厅
第1张
第2张
餐厅
第1张
卧室
第1张
卫生间
第1张
第2张
厨房
第1张
门厅
第1张
第2张
过廊
第1张
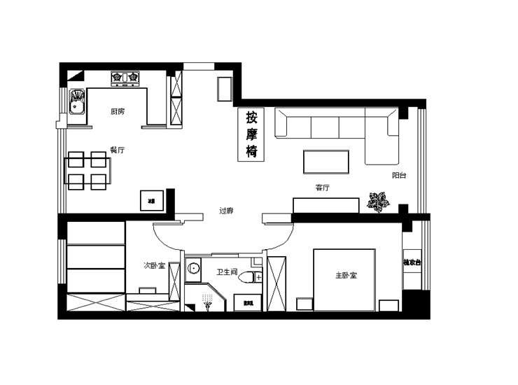
户型图
第1张
  • 案例详情

江南时代-88平-现代简约-电视背景.jpg 江南时代-88平-现代简约-首图.jpg

客厅白色和灰色为基调,暖色的家具使空间没有那么冷淡,橙色与蓝色的窗帘米色加蓝色的地毯与挂画让空间变得立体

江南时代-88平-现代简约-餐厅.jpg

餐厅区域的墙面以色彩丰富的挂画作为搭配,为白色的墙面增加生命力。

江南时代-88平-现代简约-卧室.jpg

卧室的亮点在与飘窗的设计,本案的女业主平时经常化妆而且化妆品很多,为了不占用更多的空间还能完成业主的需求于是设计师对飘窗施展了一点小魔术,在飘窗的位置做了一个隐藏式的梳妆台,在飘窗上层面板打开时就是一个梳妆台,飘窗强大的储物功能也可以满足女业主化妆品摆放的问题,在面板放下时就可以当休息区在闲暇时间喝个茶看看风景。

江南时代-88平-现代简约-卫生间.jpg 江南时代-88平-现代简约-卫生间2.jpg

卫生间整体以黑白灰为主色调,既显得干净整洁,有现代时尚感十足。

江南时代-88平-现代简约-厨房.jpg

厨房是业主非常认可的一个区域。厨房的门原始是面向进户门的使得厨房空间狭小,光照不足。于是设计师将原有的门封死把与餐厅区域连接的墙砸开改成四开门再加上U型橱柜的设计让厨房有了足够的空间,改造后餐厅区域的光照进厨房优化了光照不足的情况,也使得整体空间看起来变得通透。

江南时代-88平-现代简约-穿衣镜.jpg 江南时代-88平-现代简约-玄关柜.jpg 江南时代-88平-现代简约-玄关过廊.jpg 江南时代-88平-现代简约-平面布置图.jpg

案例设计师

林凤装饰设计师

设计师:林凤装饰设计师

从业时间:12年

设计理念:千人千面,设计以人为本才是王道。

预约设计师

算算你家装修多少钱

报名即享丰厚赠品,品质装修

免费报价
咨询热线:400-656-9909
20190221103704574636.jpg

精品设计案例

20180612134930523248.jpg 服务号二维码.jpg