立即预约 立即预约
免费定制整装家居

免费定制整装家居

一站置家 全程无忧 一省到底
hide.png

当前位置: 首页 > 装修案例效果图 > 金地时代风华|现代风格

金地时代风华|现代风格 125平 现代简约风格效果图

收藏
案例风格 现代简约 案例户型 三居 案例面积 125平米
楼盘名称 金地时代风华 设计师 林凤装饰设计师 案例类型 改善性住宅

设计理念:设计师整体设计理念: 本案采用黑白灰为主色调,打造一种既简约又不失韵味的感觉,彩色和纯白色进行搭配,总体感觉更温馨.更有结婚之后家的感觉,也让空间没有因为灰色的加入而缺失温馨的感觉。

客厅
第1张
第2张
餐厅
第1张
卧室
第1张
第2张
卫生间
第1张
第2张
厨房
第1张
儿童房
第1张
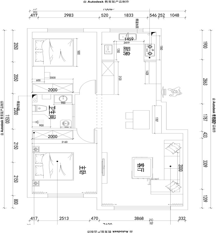
户型图
第1张
微信图片_20211004110532.jpg 微信图片_20211004094819 副本.jpg

客厅说明:客厅与餐厅厨房打通形成互动空间,更大视野更开阔,主要以颜色和装饰来点缀,既简洁又不失单调,让整体过渡的更加自然.不显突兀.提升了空间的造型感觉.

微信图片_20211004094724 副本.jpg

餐厅说明: 餐厅空间与客厅在一个空间,岛台连接餐桌.实用性能拉满.也保证了后期使用效率,灯光以温馨为主。餐桌上方吊灯光线拉低.使得用餐时氛围更加温馨.

微信图片_20211004094714 副本.jpg 微信图片_20211004094803 副本.jpg

主卧室说明: 主卧室与整体风格保持一直,使得整体效果更加完美.通顶衣柜,增加了空间的储物功能,床头柜上摆放了一些装饰,使整个空间更加温馨。

微信图片_20211004094652 副本.jpg 微信图片_20211004094807 副本.jpg

卫生间说明:卫生间采用灰色的砖,地砖上墙的铺贴方式,让卫生间更大气,灰色柜子搭配白色的台面,整体的色调给人一种高端大气的感觉。

微信图片_20211004094730 副本.jpg

厨房说明: 厨房采用开放式厨房,橱柜采用平板门无拉手,更现代美观感觉.,采用乳白色和白色的配色进行搭配.更好打理.

微信图片_20211004094734 副本.jpg 碧桂园大成印象-89平-平面布置图.jpg

案例设计师

林凤装饰设计师

设计师:林凤装饰设计师

从业时间:15年

设计理念:用设计再现人文

预约设计师

算算你家装修多少钱

报名即享丰厚赠品,品质装修

免费报价
咨询热线:400-656-9909
20190221103704574636.jpg

精品设计案例

20180612134930523248.jpg 服务号二维码.jpg