立即预约 立即预约
免费定制整装家居

免费定制整装家居

一站置家 全程无忧 一省到底
hide.png

当前位置: 首页 > 装修案例效果图 > 华润幸福里|现代法式

华润幸福里|现代法式 92平 其他风格效果图

收藏
案例风格 其他 案例户型 二居 案例面积 92平米
楼盘名称 华润幸福里 设计师 林凤设计师 案例类型 改善性住宅

设计理念:设计师整体设计理念:温暖 大方

客厅
第1张
第2张
餐厅
第1张
卧室
第1张
卫生间
第1张
第2张
厨房
第1张
第2张
儿童房
第1张
门厅
第1张
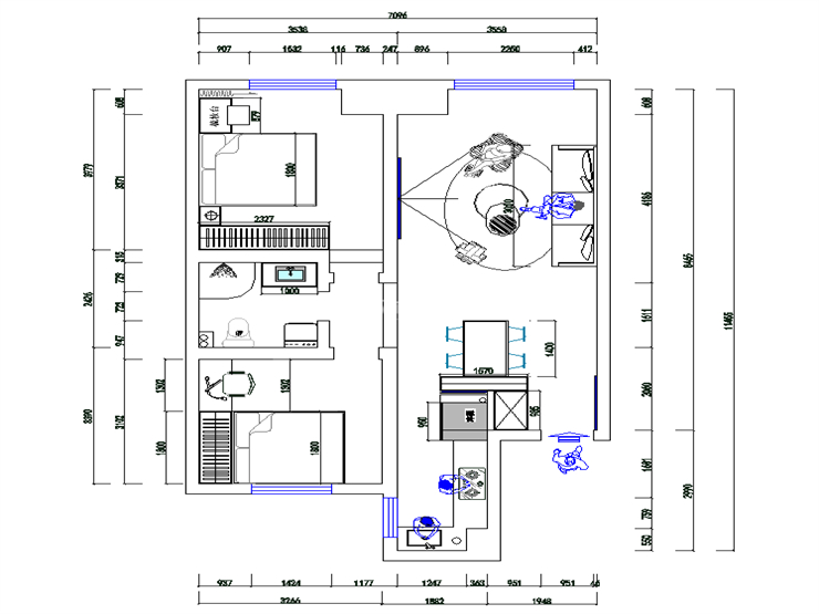
户型图
第1张
华润幸福里-92平-现代法式风格-客厅.jpg 首图.jpg

客厅说明: 暖灰色理石纹理地砖,柔美法式线条电视背景墙 米白色沙发.用土橘色抱枕点缀 搭配暖色系落日等 加抽象人像挂画让空间更加灵动

华润幸福里-92平-现代法式风格-餐厅.jpg

餐厅说明:餐厅用土橘色餐椅与沙发抱枕软装相呼应

华润幸福里-92平-现代法式风格-主卧.jpg

主卧室:主卧背景墙调奶杏色 呼应整体温柔暖暖色调 软装挂画 床品土橘色与客厅背景软装色系呼应

华润幸福里-92平-现代法式风格-卫生间.jpg 华润幸福里-92平-现代法式风格-卫生间2.jpg

卫生间:整体采用奶油色系做搭配

华润幸福里-92平-现代法式风格-厨房.jpg 华润幸福里-92平-现代法式风格-厨房2.jpg

厨房:橱柜采用同色系橱柜 空间视觉效果更敞亮些

华润幸福里-92平-现代法式风格-儿童房.jpg

儿童房:次卧主要用来做房主父母过来居住 整体以极简为主由于空间相对别的房间略小一些 床头柜 采用与衣柜一体悬空设计

华润幸福里-92平-现代法式风格-门厅.jpg 平面图.jpg

案例设计师

林凤设计师

设计师:林凤设计师

从业时间:0年

设计理念:

预约设计师

算算你家装修多少钱

报名即享丰厚赠品,品质装修

免费报价
咨询热线:400-656-9909
20190221103704574636.jpg

精品设计案例

20180612134930523248.jpg 服务号二维码.jpg