立即预约 立即预约
免费定制整装家居

免费定制整装家居

一站置家 全程无忧 一省到底
hide.png

当前位置: 首页 > 装修案例效果图 > 千山景苑|欧式风格

千山景苑|欧式风格 140平 欧式风格效果图

收藏
案例风格 欧式 案例户型 三居 案例面积 140平米
楼盘名称 千山景苑 设计师 孟凡玉 案例类型 改善性住宅

设计理念:设计师整体设计理念:本案设计风格以欧式风格为主,整体设计以暖色调为主,既温馨又大气。

客厅
第1张
第2张
第3张
餐厅
第1张
卧室
第1张
第2张
卫生间
第1张
第2张
衣帽间
第1张
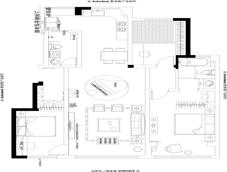
户型图
第1张
千山景苑-客餐厅.jpg 千山景苑-客厅.jpg 千山景苑-客餐厅1.jpg

客厅设计说明:客厅采取圈棚结合欧式成品石膏线设计,与背景墙护墙板结合隐形门交相辉映,背景墙中间部分采用暖黄色壁布点缀,与欧式造型沙发搭配一致,使整个空间看起来非常协调。

千山景苑-餐厅.jpg

餐厅设计说明:餐厅与客厅均为开放型空间,从家具搭配与家具颜色上协调统一,餐厅采取餐吊给餐桌定位感,使就餐变得舒适安稳。

千山景苑-女儿房.jpg 千山景苑-主卧.jpg

卧室设计说明:主卧室依旧延续欧式设计,在床头两侧用了两个壁灯,增加照明的同时又点缀的整个床头背景,为空间添加色彩。

千山景苑-客卫.jpg 千山景苑-主卫.jpg

卫生间设计说明:卫生间整体色调偏浅,非常干净,整洁,洁白的浴缸与坐便颜色统一,协调,洗漱柜,岩板台面非常高级。

千山景苑-衣帽间.jpg 千山景苑 .jpg

案例设计师

孟凡玉

设计师:孟凡玉

从业时间:10年

设计理念:好的设计不只是美,它会让人产生美的 感受,它与生活息息相关

预约设计师

算算你家装修多少钱

报名即享丰厚赠品,享半价装修

免费报价
咨询热线:400-656-9909
20190221103704574636.jpg

精品设计案例

20180612134930523248.jpg 服务号二维码.jpg