立即预约 立即预约
免费定制整装家居

免费定制整装家居

一站置家 全程无忧 一省到底
hide.png

当前位置: 首页 > 装修案例效果图 > 悦景新世界|现代风格

悦景新世界|现代风格 105平 现代简约风格效果图

收藏
案例风格 现代简约 案例户型 三居 案例面积 105平米
楼盘名称 悦景新世界 设计师 刘云静 案例类型 改善性住宅

设计理念:设计师整体设计理念: 本案采用黑白灰为主色调,打造一种既简约又不失韵味的感觉,彩色和纯白色进行搭配,总体感觉更温馨.更有结婚之后家的感觉,也让空间没有因为灰色的加入而缺失温馨的感觉。

客厅
第1张
第2张
第3张
第4张
餐厅
第1张
第2张
卧室
第1张
第2张
卫生间
第1张
厨房
第1张
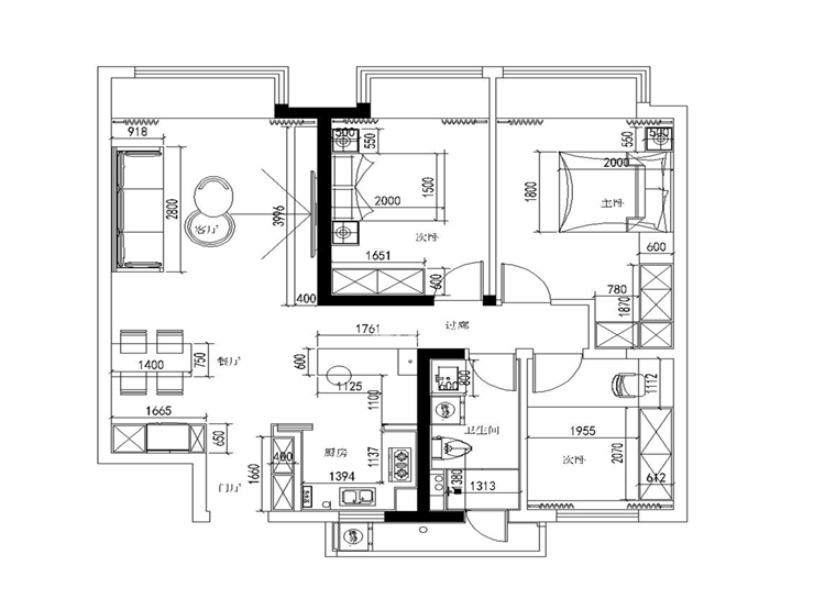
户型图
第1张
悦景新世界-105平-现代风格- 首图.jpg 悦景新世界-现代风格-105平-客  厅.jpg 悦景新世界-现代风格-105平-客 厅.jpg 悦景新世界-现代风格-105平-客厅.jpg

客厅说明:客厅与餐厅厨房打通形成互动空间,更大视野更开阔,主要以颜色和装饰来点缀,既简洁又不失单调,让整体过渡的更加自然.不显突兀.提升了空间的造型感觉.

悦景新世界-现代风格-105平-餐厅.jpg 悦景新世界-现代风格-105平-餐桌.jpg

餐厅说明: 餐厅空间与客厅在一个空间,岛台连接餐桌.实用性能拉满.也保证了后期使用效率,灯光以温馨为主。餐桌上方吊灯光线拉低.使得用餐时氛围更加温馨.

悦景新世界-现代风格-105平-榻榻米.jpg 悦景新世界-现代风格-105平-卧室.jpg

主卧室说明: 主卧室与整体风格保持一直,使得整体效果更加完美.通顶衣柜,增加了空间的储物功能,床头柜上摆放了一些装饰,使整个空间更加温馨。

悦景新世界-现代风格-105平-卫生间.jpg

卫生间说明:卫生间采用灰色的砖,地砖上墙的铺贴方式,让卫生间更大气,灰色柜子搭配白色的台面,整体的色调给人一种高端大气的感觉。

悦景新世界-现代风格-105平-厨房.jpg

厨房说明: 厨房采用开放式厨房,橱柜采用平板门无拉手,更现代美观感觉.,采用乳白色和白色的配色进行搭配.更好打理.

悦景新世界-现代风格-105平-平面方案.jpg

案例设计师

刘云静

设计师:刘云静

从业时间:10年

设计理念:在我的世界里,设计不仅是视觉的艺术,更是情感的传递与文化的融合。

预约设计师

算算你家装修多少钱

报名即享丰厚赠品,享半价装修

免费报价
咨询热线:400-656-9909
20190221103704574636.jpg

精品设计案例

20180612134930523248.jpg 服务号二维码.jpg