立即预约 立即预约
免费定制整装家居

免费定制整装家居

一站置家 全程无忧 一省到底
hide.png

当前位置: 首页 > 装修案例效果图 > 万达盛京one|现代日式

万达盛京one|现代日式 115平 现代简约风格效果图

收藏
案例风格 现代简约 案例户型 二居 案例面积 115平米
楼盘名称 万达盛京one 设计师 林凤设计师 案例类型 改善性住宅

设计理念:设计师整体设计理念: 这套装修风格是大众喜欢的现代极简日式风,整体搭配原木色为主,突显日式风格的温馨舒适。

客厅
第1张
餐厅
第1张
卧室
第1张
第2张
第3张
卫生间
第1张
厨房
第1张
过廊
第1张
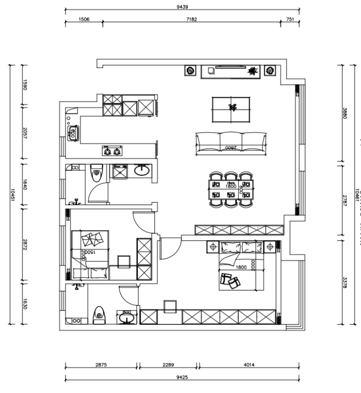
户型图
第1张
万达盛京one115平-现代极简日式风-客厅.jpg

客厅说明:客厅整体采用了原木色,木制的背景墙和灰色墙面进行了个连接,一个是现代,一个是极简,相互融合,就给人一种很贴近自然又带点舒适的感觉,就很微妙。

万达盛京one115平-现代极简日式风-餐厅.jpg

餐厅说明; 餐厅中不同材料的运用和叠加,弧形后背的餐椅与顶面的弧线造型相呼应。餐厅的顶面采用双层弧形叠级吊顶,增加空间的层次感,一定程度上消除了顶面面积过大所带来的空荡感。

万达盛京one115平-现代极简日式风-次卧室.jpg 万达盛京one115平-现代极简日式风-主卧室 .jpg 万达盛京one115平-现代极简日式风-主卧室(1).jpg

主卧室说明; 卧室一设计了当下流行的极简门的衣柜搭配房间的整体设计,一个凸显当下流行的设计,另一个凸显出了整体空间的质感,在搭配柔和的灯光,营造出一个舒适的睡眠环境。卧室二设计加入了现代简约的设计并预留出了超大的飘窗位置,外面明亮的光线营造出清新自然氛围。

万达盛京one115平-现代极简日式风-卫生间.jpg

卫生间说明:卫生间的问题就是要对这个空间做一个整体的设计。卫生间具有清洗、浴室、厕所三种功能,因此我们要先设计好收纳柜和卫浴用品的位置。将这个有限的空间做一个合理的整体规划,只有做好了整体规划才能做进一步的细节处理。

万达盛京one115平-现代极简日式风-厨房.jpg 万达盛京one115平-现代极简日式风-玄关.jpg 万达盛京one115平-现代极简日式风-平面图.png

案例设计师

林凤设计师

设计师:林凤设计师

从业时间:10年

设计理念:以人为本

预约设计师

算算你家装修多少钱

报名即享丰厚赠品,享半价装修

免费报价
咨询热线:400-656-9909
20190221103704574636.jpg

精品设计案例

20180612134930523248.jpg 服务号二维码.jpg