立即预约 立即预约
免费定制整装家居

免费定制整装家居

一站置家 全程无忧 一省到底
hide.png

当前位置: 首页 > 装修案例效果图 > 首府壹号院|现代风格

首府壹号院|现代风格 114平 现代简约风格效果图

收藏
案例风格 现代简约 案例户型 三居 案例面积 114平米
楼盘名称 首府壹号院 设计师 王松 案例类型 改善性住宅

设计理念:设计师整体设计理念: 因生活而设计,因设计而完美。

客厅
第1张
第2张
卧室
第1张
卫生间
第1张
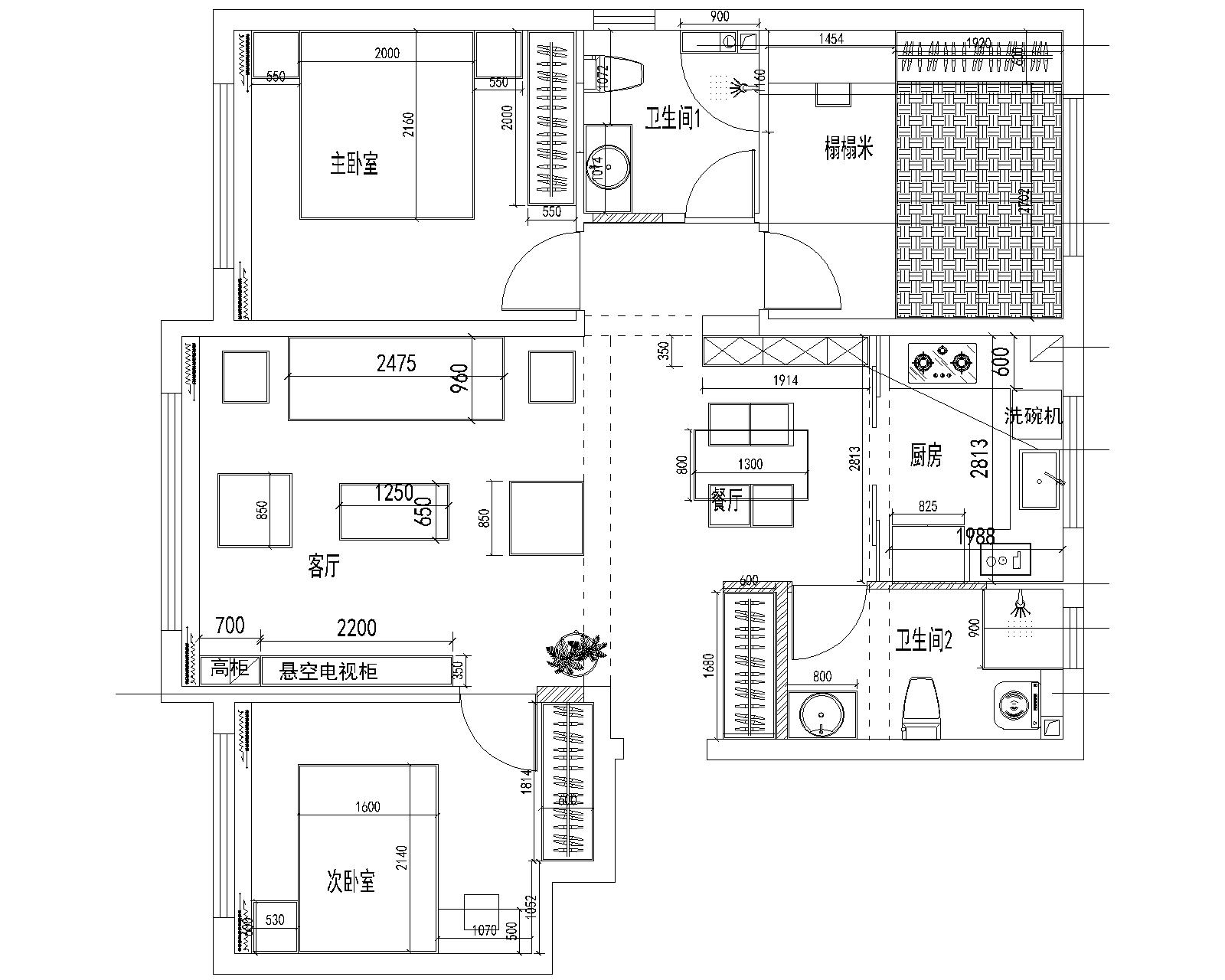
户型图
第1张
首府壹号院-120平-现代风格-客厅 (2).jpg 首府壹号院-120平-现代风格-客厅 (3).jpg

客厅说明;客厅是家里的门面担当,所以尽可能扩大客厅让整个屋子更通透,所以把外阳台扩在客厅。客厅不做岩板背景墙,简单的乳胶漆调色高级也耐看。称重横梁位置调平,一圈简约的圈棚上面内嵌筒灯,客厅中间原始棚面中间掉灯。灯光氛围感十足又不压层高。女儿房隐藏门也变成了客厅的装饰小亮点,增加电视背景墙的宽度,缓解眼里疲劳。

首府壹号院-120平-现代风格-卧室.jpg 首府壹号院-120平-现代风格-卫生间.jpg 平面图.jpg

案例设计师

王松

设计师:王松

从业时间:10年

设计理念:品味生活,从家开始

预约设计师

算算你家装修多少钱

报名即享丰厚赠品,享半价装修

免费报价
咨询热线:400-656-9909
20190221103704574636.jpg

精品设计案例

20180612134930523248.jpg 服务号二维码.jpg