立即预约 立即预约
免费定制整装家居

免费定制整装家居

一站置家 全程无忧 一省到底
hide.png

当前位置: 首页 > 装修案例效果图 > 汇置尚都|现代奶油

汇置尚都|现代奶油 105平 现代简约风格效果图

收藏
案例风格 现代简约 案例户型 三居 案例面积 105平米
楼盘名称 汇置尚都 设计师 林凤装饰全案设计师 案例类型 旧房改造

设计理念:设计师整体设计理念:居住、改善、体验品质生活

汇置尚都-109-奶油风-客厅_.1.jpg 汇置尚都-109-奶油风-客厅1.jpg 汇置尚都-109-奶油风-首图本.jpg 汇置尚都-109-奶油风-客厅.jpg 汇置尚都-109-奶油风-电视背景墙.jpg

客厅说明:客厅和书房整体打开做成开放式书房、这样看着空间更敞亮些、书房后面也有一排书柜、装饰和收纳的作用并存。

汇置尚都-109-奶油风-主卧室.jpg 汇置尚都-109-奶油风-主卧卫生间.jpg 汇置尚都-109-奶油风-北卧.jpg 汇置尚都-109-奶油风-主卧衣帽间.jpg

卧室说明:主卧室的背景墙也是跟客厅一样 一个浅色的乳胶漆、步入式衣帽间和梳妆台满足了收纳和女主人的需求、也在风水上避开了卫生间的门对着主卧的床。

汇置尚都-109-奶油风-次卫干区.jpg 汇置尚都-109-奶油风-次卫.jpg

卫生间说明:主卧卫生间是小清新风格满足了女主人的小心思、上下AB坂两个颜色的瓷砖更显活力。次卧卫生间做成干湿分离也是满足了人多时卫生间的使用。

汇置尚都-109-奶油风-厨房.jpg

餐厅及厨房说明:厨房整体的白色的柜子和浅灰色的瓷砖、这样做整体效果会更好。厨房没有用推拉门而是用一个钛镁合金的平开门、餐厅的餐边柜和鞋些做成转角柜、

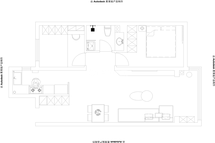
汇置尚都-109-奶油风-平面图.jpg

案例设计师

林凤装饰全案设计师

设计师:林凤装饰全案设计师

从业时间:5年

设计理念:设计源于生活,细节成就品质。

预约设计师

算算你家装修多少钱

报名即享丰厚赠品,享半价装修

免费报价
咨询热线:400-656-9909
20190221103704574636.jpg

精品设计案例

20180612134930523248.jpg 服务号二维码.jpg