立即预约 立即预约
免费定制整装家居

免费定制整装家居

一站置家 全程无忧 一省到底
hide.png

当前位置: 首页 > 装修案例效果图 > 华润置地|现代简约

华润置地|现代简约 124平 现代简约风格效果图

收藏
案例风格 现代简约 案例户型 三居 案例面积 124平米
楼盘名称 华润置地 设计师 张景新 案例类型 改善性住宅

设计理念:设计理念:本案建筑面积124平米,根据业主需求设计了现代简约风格,简单大气,不俗套,用简单明快的线条和装饰,营造不简单的效果。

客厅
第1张
餐厅
第1张
卧室
第1张
第2张
第3张
卫生间
第1张
厨房
第1张
衣帽间
第1张
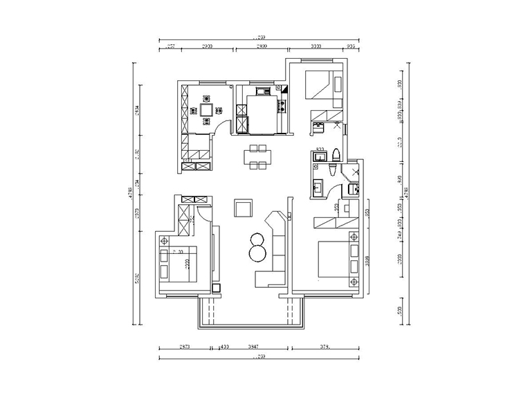
户型图
第1张
华润置地静安府-124平米-现代风格-客厅.jpg

客厅说明:采用无主灯设计,双眼皮吊顶,浅灰的色调干净优雅。

华润置地静安府-124平米-现代风格-餐厅.jpg 华润置地静安府-124平米-现代风格-北卧.jpg 华润置地静安府-124平米-现代风格-南卧.jpg 华润置地静安府-124平米-现代风格-主卧.jpg

卧室说明:在卧室中放置了梳妆台满足女主人化妆的需求

华润置地静安府-124平米-现代风格-卫生间.jpg

卫生间说明:主卫的淋浴房保障整个空间的干燥

华润置地静安府-124平米-现代风格-厨房.jpg

厨房说明:U性台的设计满足了客户对大厨房的需求,嵌入式冰箱和大面积的橱柜增加了收纳空间,实现空间合理化。

华润置地静安府-124平米-现代风格-衣帽间.jpg 华润置地静安府-124平米-现代风格-布局图.jpg

案例设计师

张景新

设计师:张景新

从业时间:6年

设计理念:合理的划分空间,让设计融入生活,营造自然,品味,格调

预约设计师

算算你家装修多少钱

报名即享丰厚赠品,享半价装修

免费报价
咨询热线:400-656-9909
20190221103704574636.jpg

精品设计案例

20180612134930523248.jpg 服务号二维码.jpg