立即预约 立即预约
免费定制整装家居

免费定制整装家居

一站置家 全程无忧 一省到底
hide.png

当前位置: 首页 > 装修案例效果图 > 中海汇德里|现代风格

中海汇德里|现代风格 127平 现代简约风格效果图

收藏
案例风格 现代简约 案例户型 三居 案例面积 127平米
楼盘名称 中海汇德里 设计师 林凤装饰全案设计师 案例类型 改善性住宅

设计理念:将空间化零为整,追求空间划分的,相对独立和合理性。提高空间的利用率。设计手法上追求人与空间的和谐统一.

客厅
第1张
第2张
第3张
餐厅
第1张
卧室
第1张
第2张
第3张
卫生间
第1张
厨房
第1张
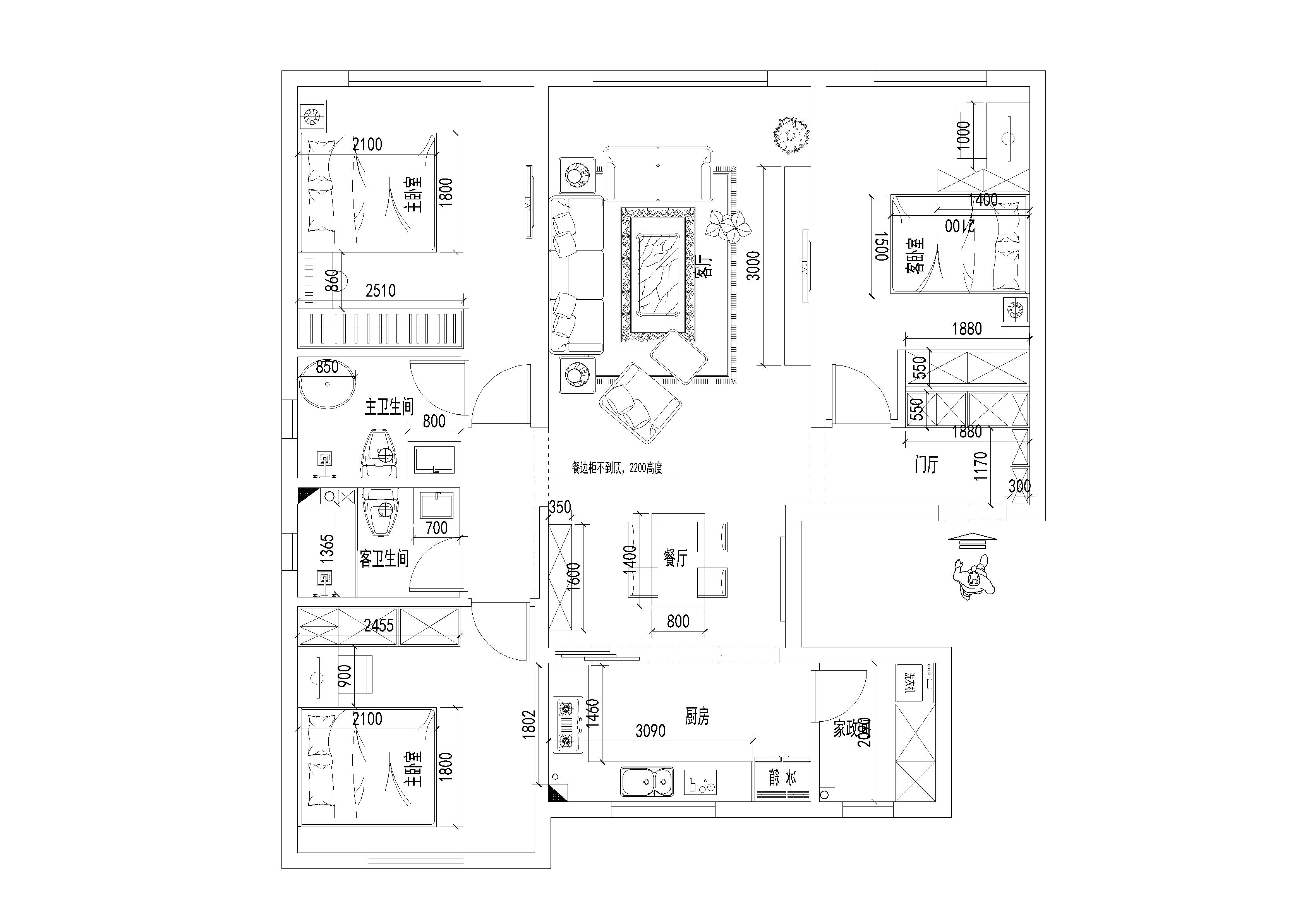
户型图
第1张
中海汇德里-127平-现代风格-客厅.jpg 中海汇德里-127平-现代风格-沙发.jpg 中海汇德里-127平-现代风格-首图.jpg

客厅说明:客户喜欢大方简洁的现代风格,沙发选择的是暖灰色贵妃位式多人沙发,搭配深灰色小方椅,点缀了客厅空间。所以电视背景墙选择了简单的白色配岩板盒格栅来进行颜色材质的搭配,是空间更有视觉感更强。

中海汇德里-127平-现代风格-餐厅.jpg

餐厅说明:餐厅部位墙壁只挂了一幅简单的壁画,享受慢节奏的生活,低调而又不失内涵。浅色系大理石材质的餐桌,使餐厅空间更有质感,充满仪式感的餐桌氛围扑面而来。

中海汇德里-127平-现代风格-北卧室.jpg 中海汇德里-127平-现代风格-主卧室.jpg 中海汇德里-127平-现代风格-客卧室.jpg 中海汇德里-127平-现代风格-客卫生间.jpg

卫生间说明:卫生间采用灰基调的颜色,为客户做到了日常洗漱方便的生活需求,使卫生间的空间多元化,灰色的浴室柜与白色的洗漱台面更是搭配协调。黑色龙头在灰色的墙砖起点缀作用.

中海汇德里-127平-现代风格-厨房.jpg

厨房说明:厨房以胡桃木颜色为主体基调,采用浅灰色地砖及理石灰色墙砖进行搭配,木色的橱柜搭配灰色墙砖,简单而又不失大气。

中海汇德里-127平-现代风格-平面图.jpg

案例设计师

林凤装饰全案设计师

设计师:林凤装饰全案设计师

从业时间:10年

设计理念:热情奔放的红与蓝,睿智冷静黑与白,每一种色彩与艺术的共衡都呈现出独一无二的面貌,构建一种独属于自己的生活方式。

预约设计师

算算你家装修多少钱

报名即享丰厚赠品,享半价装修

免费报价
咨询热线:400-656-9909
20190221103704574636.jpg

精品设计案例

20180612134930523248.jpg 服务号二维码.jpg