立即预约 立即预约
免费定制整装家居

免费定制整装家居

一站置家 全程无忧 一省到底
hide.png

当前位置: 首页 > 装修案例效果图 > 旭辉·璟宸府|现代奶油风格

旭辉·璟宸府|现代奶油风格 160平 其他风格效果图

收藏
案例风格 其他 案例户型 一居 案例面积 160平米
楼盘名称 旭辉·璟宸府 设计师 杨达 案例类型 改善性住宅

设计理念:设计师整体设计理念:本案以现代奶油风格出发,整个空间以明亮空间色调,使用暖白、米色、奶油色等淡淡的暖白色调来呈现舒适、温柔感。

客厅
第1张
第2张
餐厅
第1张
卧室
第1张
第2张
卫生间
第1张
第2张
厨房
第1张
休闲区
第1张
衣帽间
第1张
第2张
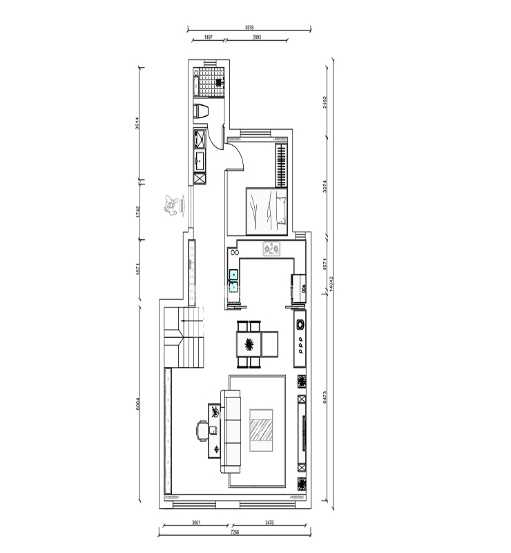
户型图
第1张
旭辉·璟宸府-160㎡-现代奶油-客厅(首图).jpg 旭辉·璟宸府-160㎡-现代奶油-客厅1.jpg

客厅说明: 客厅作为待客区域,一般要求简洁明快,同时装修较其它空间要更明快光鲜,进深感强。本案户型客厅空间宽敞,电视背景墙采用岩板作为装饰,颜色采用亮色,整体明亮不显得拥挤,使整个空间更有质感,浅木色为主调,用色简洁大气又不失温馨。

旭辉·璟宸府-160㎡-现代奶油-餐厅.jpg

餐厅说明:本方案餐厅临近厨房,增加用餐便捷。无主灯加吊灯设计让视野得到提高,整个空间的亮度更加均匀。餐边柜以浅色系为主,使空间更加通透与明亮,具备美观的同时,增加大量的储物空间与使用功能。搭配灰色餐椅,不失主题的同时,简约又时尚。

旭辉·璟宸府-160㎡-现代奶油-卧室1.jpg 旭辉·璟宸府-160㎡-现代奶油-卧室2.jpg

卧室说明:卧室整体空间以浅色调为基础,优雅简约的设计,低饱和呈现出高品质的生活气息。学习桌和全屋柜体用原木色使整体更加和谐。空间利用率高不显得空旷,书柜上方留虚光,使得灯光更有层次。

旭辉·璟宸府-160㎡-现代奶油-梳妆台.jpg 旭辉·璟宸府-160㎡-现代奶油-卫生间.jpg

卫生间说明:卫生间整体采用整砖铺贴,配合灯光更显宽敞,将空间划分明确,相互使用不受影响,整体光源充足。玻璃门的的设计既起到干湿分离的作用又不会破坏整体空间的宽敞感。

旭辉·璟宸府-160㎡-现代奶油-厨房.jpg

厨房说明:U型橱柜加岛台形成U型空间,整体宽敞,布局合理,符合中国人做饭洗切炒的流程,橱柜采用白色,简约大气,长墙砖和防水石膏板吊顶也符合当下流行材料,耐用好看节约成本。

旭辉·璟宸府-160㎡-现代奶油-电竞室.jpg 旭辉·璟宸府-160㎡-现代奶油-衣柜.jpg 旭辉·璟宸府-160㎡-现代奶油-衣帽间.jpg 旭辉·璟宸府-160㎡-现代奶油-户型图.jpg

案例设计师

杨达

设计师:杨达

从业时间:10年

设计理念:精雕细琢,返璞归真。

预约设计师

算算你家装修多少钱

报名即享丰厚赠品,享半价装修

免费报价
咨询热线:400-656-9909
20190221103704574636.jpg

精品设计案例

20180612134930523248.jpg 服务号二维码.jpg