立即预约 立即预约
免费定制整装家居

免费定制整装家居

一站置家 全程无忧 一省到底
hide.png

当前位置: 首页 > 装修案例效果图 > 移动馨城|现代风格

移动馨城|现代风格 120平 现代简约风格效果图

收藏
案例风格 现代简约 案例户型 三居 案例面积 120平米
楼盘名称 移动馨城 设计师 林凤设计师 案例类型 改善性住宅

设计理念:设计师整体设计理念:本案设计整体以时尚为主导,为业主打造一个简洁、功能性强的家。

客厅
第1张
第2张
第3张
餐厅
第1张
第2张
卧室
第1张
第2张
卫生间
第1张
第2张
厨房
第1张
书房
第1张
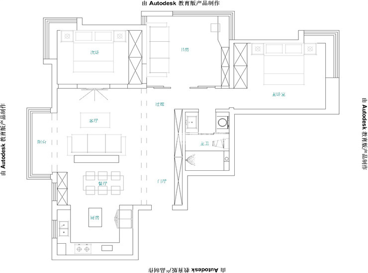
户型图
第1张
移动馨城-120平-现代风格-客厅-.jpg 移动馨城-120平-现代风格-客厅.jpg 移动馨城-120平-现代风格-首图.jpg

客厅说明: 阳台和客厅连同,设计成一个大的客厅空间。电视背景墙采用暖咖色护墙板,搭配浅灰色乳胶漆,展开式电视柜上可以摆放 KAWS公仔或者心爱的藏品

移动馨城-120平-现代风格-餐厅.jpg 移动馨城-120平-现代风格-餐厅-.jpg

餐厅说明: 餐厅与客厅相结合,开放式的格局尽显餐厅通透明亮,也方便家庭成员的互动与交流

移动馨城-120平-现代风格-次卧.jpg 移动馨城-120平-主卧.jpg

卧室说明: :灰色与蓝色的撞色设计,使空间显得简洁明了,和衣柜颜色相呼应,更具时尚感

移动馨城-120平-现代风格-卫生间.jpg 移动馨城-120平-卫生间-现代风格-湿区.jpg

卫生间说明:卫生间采用干湿分离方式,整个空间实用性大大提升,搭配长虹玻璃门干净又通透

移动馨城-120平-现代风格-次卧 (2).jpg

厨房说明: 开放式厨房搭配,白色大理石岛台加白色橱柜内嵌各种家电,简洁清爽,耐脏易打理

移动馨城-120平-现代风格-书房.jpg 移动馨城-120平-现代风格-平面图.jpg

案例设计师

林凤设计师

设计师:林凤设计师

从业时间:8年

设计理念:设计源于生活,细节成就品质。

预约设计师

算算你家装修多少钱

报名即享丰厚赠品,享半价装修

免费报价
咨询热线:400-656-9909
20190221103704574636.jpg

精品设计案例

20180612134930523248.jpg 服务号二维码.jpg