立即预约 立即预约
免费定制整装家居

免费定制整装家居

一站置家 全程无忧 一省到底
hide.png

当前位置: 首页 > 装修案例效果图 > 时代之城|现代轻奢

时代之城|现代轻奢 132平 轻奢风格效果图

收藏
案例风格 轻奢 案例户型 三居 案例面积 132平米
楼盘名称 时代之城 设计师 林凤装饰全案设计师 案例类型 儿童房

设计理念:设计师整体设计理念: 把握轻与奢的平衡,在简约中带有一丝奢侈的质感。以高品质和简约为基础,设计简洁大方,时尚,前卫,优雅,温馨,给人舒适温暖的感觉,在这套案例中选取象牙白色系为主要极低的清浅色调辅以金色,黑色,驼色等高级色系为点缀以此营造出轻奢的味道,在材质上也融合了木质、金属,理石等元素,唤醒整个空间氛围,于空间中呈现出奢华而又摩登的美。

客厅
第1张
第2张
第3张
第4张
餐厅
第1张
卧室
第1张
第2张
卫生间
第1张
第2张
厨房
第1张
过廊
第1张
第2张
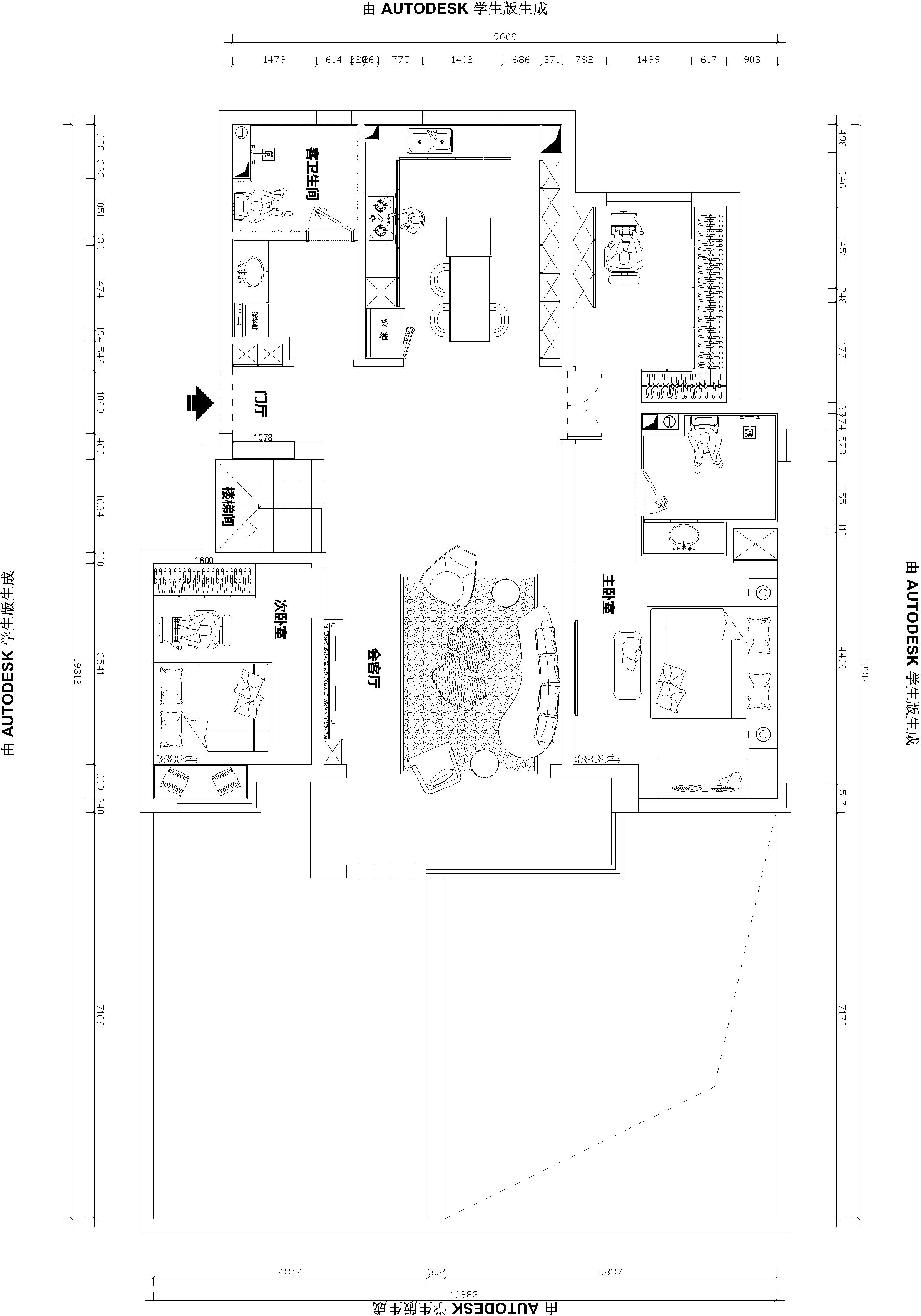
户型图
第1张
时代之城130²客厅 (2)现代轻奢风.jpg 时代之城130²客厅 (3)现代轻奢风.jpg 时代之城130²客厅 (4)现代轻奢风.jpg 时代之城130²客厅 (5)现代轻奢风.jpg

客厅说明: 客厅设计运用理石和木格栅的拼接使两种不同的材质相互碰撞而呈现出一种大气高端的感觉,配合上米白色的沙发背景墙和同色系的沙发形成的整体感使得整个客厅空间简约而不简单,加上沙发背景墙的线条设计更衬托出了整个空间的奢华感

时代之城130²餐厅现代轻奢风.jpg 时代之城130²女孩房现代轻奢风.jpg 时代之城130²主卧现代轻奢风.jpg

卧室说明: 卧室更多的是强调温馨舒适,弱化轻奢的金属感,适当加入一些原木的配色,以米白色作为空间的主要元素营造简洁时尚的空间氛围,通过材质与色调的搭配塑造一个富有节奏感,延伸感,干练的居住空间,卧室床头柜采用和背景墙同色显得整个空间更干净整洁,格栅的背景墙加于壁灯点缀使得空间更有设计感

时代之城130²卫生间 (2)现代轻奢风.jpg 时代之城130²卫生间现代轻奢风.jpg

卫生间说明: 卫生间采用墙砖地砖同色的设计使得空间整体性更高,看正着更大气,淋浴房加浴缸加洗手池和马桶满足了一个卫生间的所有功能

时代之城130²厨房 (2)现代轻奢风.jpg

厨房说明:厨房的设计不光要求美观,更要注重实用。在厨房的设计中我采用了L型的设计并增加了一组餐边酒柜,更加加大了厨房的实用性和收纳功能,厨房整体采用黑色的柜体和理石台面搭配上白色的墙砖形成鲜明的对比和反差,显得厨房空间更美观高级,餐厨岛台一体的设计使厨房的实用性更强,操作起来更方便

时代之城130²走廊 (2)现代轻奢风.jpg 时代之城130²走廊现代轻奢风.jpg

玄关说明:入户玄关采用一组通顶高柜和一组矮柜相呼应的设计方式,不仅满足日常的收纳还形成对比,矮柜上方加入了半扇玻璃屏风使得入户空间更加通透,咖色的柜体搭配鞋柜的两组暖黄色的灯带使得整个区域更加高级

【Star然】平面布置图纸 &华润时代之城 130㎡(1)-Model.jpg

案例设计师

林凤装饰全案设计师

设计师:林凤装饰全案设计师

从业时间:8年

设计理念:设计改变生活

预约设计师

算算你家装修多少钱

报名即享丰厚赠品,品质装修

免费报价
咨询热线:400-656-9909
20190221103704574636.jpg

精品设计案例

20180612134930523248.jpg 服务号二维码.jpg