立即预约 立即预约
免费定制整装家居

免费定制整装家居

一站置家 全程无忧 一省到底
hide.png

当前位置: 首页 > 装修案例效果图 > 荣业中央广场|美式风格

荣业中央广场|美式风格 126平 美式风格效果图

收藏
案例风格 美式 案例户型 三居 案例面积 126平米
楼盘名称 荣业中央广场 设计师 菅垚 案例类型 改善性住宅

设计理念:设计师整体设计理念: 房子为客户自住、改善性住房,业主追求干净、整洁、舒适的生活环境,不希望色彩太乱,所以,本案已实用及合理性做布局,定义为美式风格。

客厅
第1张
第2张
第3张
餐厅
第1张
卧室
第1张
厨房
第1张
第2张
衣帽间
第1张
门厅
第1张
第2张
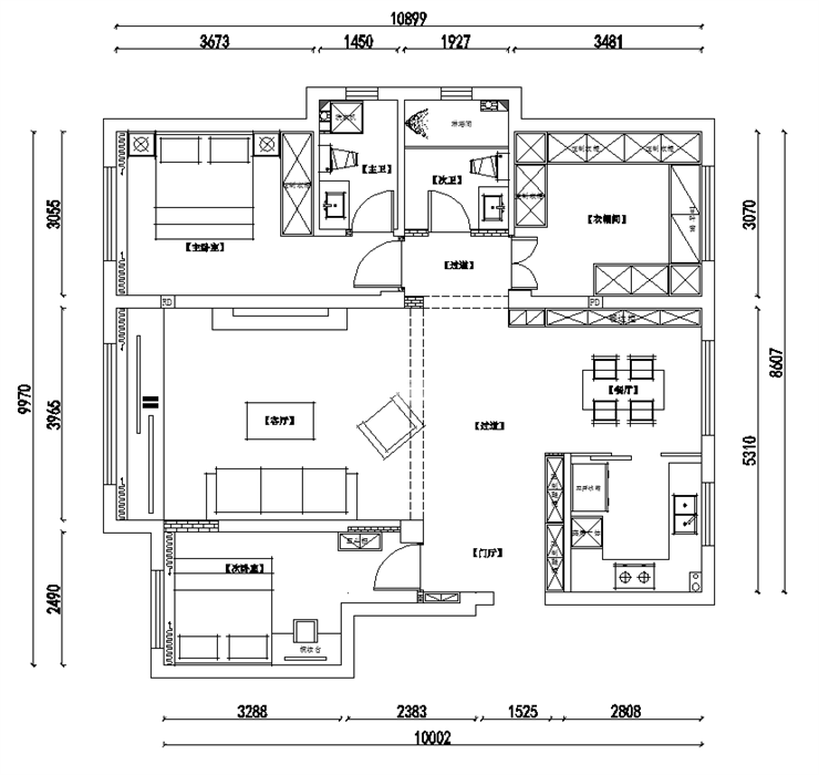
户型图
第1张
刁长鹏原创设计-荣业中央广场-美式-客厅.jpg 刁长鹏原创设计-荣业中央广场-美式-沙发.jpg 刁长鹏原创设计-荣业中央广场-美式-首图.jpg

客厅说明: 用白色色调和房间的基调,一种高级感在空间展开。

刁长鹏原创设计-荣业中央广场-美式-餐厅.jpg 刁长鹏原创设计-荣业中央广场-美式-主卧.jpg

卧室说明: 卧室区域是主要休息放松的地方。主卧延续了整个户型优雅冷静的调性。

刁长鹏原创设计-荣业中央广场-美式-厨房.jpg 刁长鹏原创设计-荣业中央广场-美式-厨房1.jpg

厨房说明:采用封闭式设计,整体融为一体,格局改造后保证了整体储藏及空间实用性。

刁长鹏原创设计-荣业中央广场-美式-衣帽间.jpg 刁长鹏原创设计-荣业中央广场-美式-过道.jpg 刁长鹏原创设计-荣业中央广场-美式-门厅.jpg 布局图.png

案例设计师

菅垚

设计师:菅垚

从业时间:11年

设计理念:没有最好的方案,只有最适合的方案

预约设计师

算算你家装修多少钱

报名即享丰厚赠品,品质装修

免费报价
咨询热线:400-656-9909
20190221103704574636.jpg

精品设计案例

20180612134930523248.jpg 服务号二维码.jpg