立即预约 立即预约
免费定制整装家居

免费定制整装家居

一站置家 全程无忧 一省到底
hide.png

当前位置: 首页 > 装修案例效果图 > 孔雀城剑桥郡|现代简约

孔雀城剑桥郡|现代简约 120平 现代简约风格效果图

收藏
案例风格 现代简约 案例户型 三居 案例面积 120平米
楼盘名称 孔雀城剑桥郡 设计师 林凤设计师 案例类型 改善性住宅

设计理念:设计师整体设计理念:本设计方案以现代简约风格为主,理念为自然舒适。

客厅
第1张
餐厅
第1张
卧室
第1张
第2张
卫生间
第1张
第2张
厨房
第1张
书房
第1张
门厅
第1张
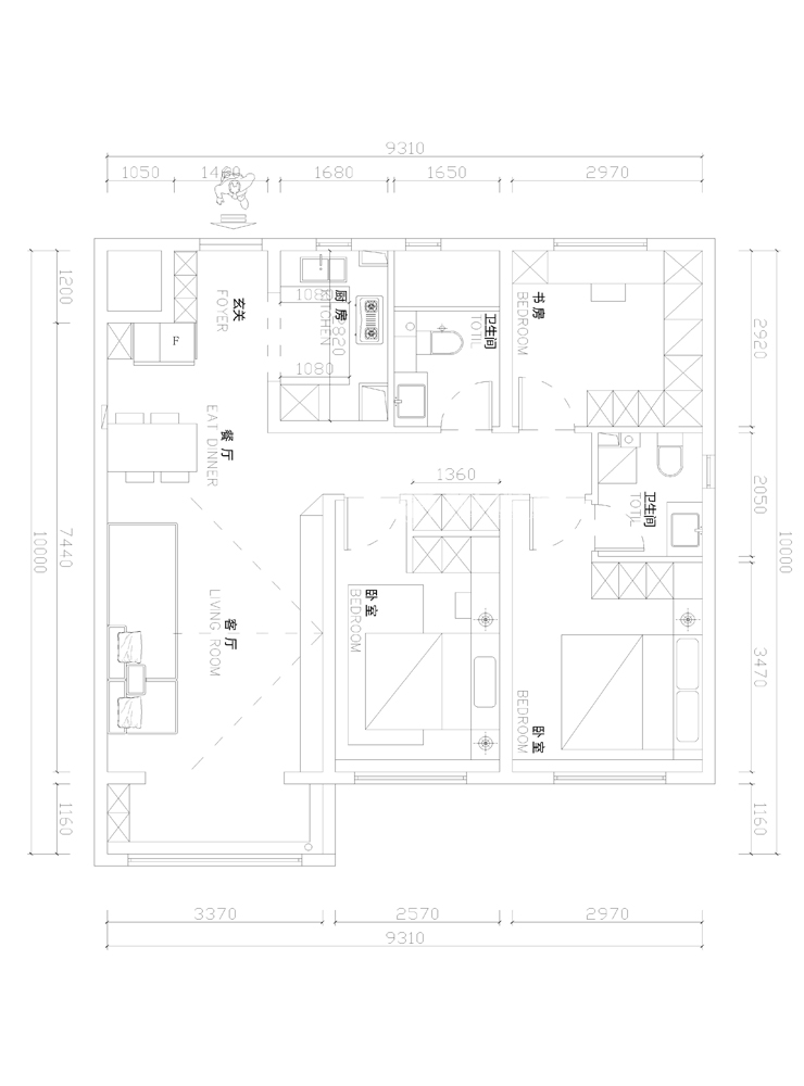
户型图
第1张
罗佳-孔雀城剑桥郡-120㎡-现代简约-客厅.jpg

客厅说明:客厅的开间的视觉效果比较宽敞,主要以宽敞明亮的感官为主,客厅的整体色彩是清浅明亮的色调,搭配灰色地毯让整个空间更加柔和,电视背景墙以简约的设计为主搭配悬浮电视木色与浅色沙发搭配的更加相得益彰。

罗佳-孔雀城剑桥郡-120㎡-现代简约-餐厅.jpg

餐厅说明:简约的餐桌搭配木色系餐椅,跳脱又清新,无主灯的设计增加线条感,使得餐厅在柔和的灯光下营造更加温馨的氛围。

罗佳-孔雀城剑桥郡-120㎡-现代简约-卧室.jpg 罗佳-孔雀城剑桥郡-120㎡-现代简约-卧室2.jpg

卧室说明:卧室功能齐全,同时配有干湿分离的卫生间 。无主灯设计,是居住空间更加柔和舒适,同时符合了方案的现代风格,床品和窗帘颜色统一色调,相互呼应。将现代风格进行到底。

罗佳-孔雀城剑桥郡-120㎡-现代简约-卫生间2.jpg 罗佳-孔雀城剑桥郡-120㎡-现代简约-卫生间.jpg

卫生间说明:卫生间空间大,打造超长大台面,配灰色系墙砖使整个空间大气宽敞明亮。干湿分离的设计使整体的使用更加舒服。

罗佳-孔雀城剑桥郡-120㎡-现代简约-厨房.jpg

厨房说明: 橱柜选用白色系板材,台面选用白色大理石作为过渡提亮空间,厨房空间整体的色系统一,使得整体的空间大气明朗,橱柜的底部灯光搭配的整体色系起到了画龙点睛的作用。

罗佳-孔雀城剑桥郡-120㎡-现代简约-书房.jpg 罗佳-孔雀城剑桥郡-120㎡-现代简约-门厅.jpg 罗佳-孔雀城剑桥郡-120㎡-现代简约-户型图.jpg

案例设计师

林凤设计师

设计师:林凤设计师

从业时间:13年

设计理念:设计是用心雕琢的艺术品

预约设计师

算算你家装修多少钱

报名即享丰厚赠品,享半价装修

免费报价
咨询热线:400-656-9909
20190221103704574636.jpg

精品设计案例

20180612134930523248.jpg 服务号二维码.jpg