立即预约 立即预约
免费定制整装家居

免费定制整装家居

一站置家 全程无忧 一省到底
hide.png

当前位置: 首页 > 装修案例效果图 > 藏珑|现代奶油

藏珑|现代奶油 140平 其他风格效果图

收藏
案例风格 其他 案例户型 三居 案例面积 140平米
楼盘名称 藏珑 设计师 胡迪 案例类型 改善性住宅

设计理念:设计师整体设计理念: 现代简约风格其着重点就在于简,室内空间朴素、大方,但其功能性强。从细节上来说,即物品的摆放要整洁,在颜色和布局上来说,颜色不宜过多整体由奶白为主色调来体现这个简。

客厅
第1张
第2张
第3张
餐厅
第1张
卧室
第1张
第2张
卫生间
第1张
第2张
厨房
第1张
书房
第1张
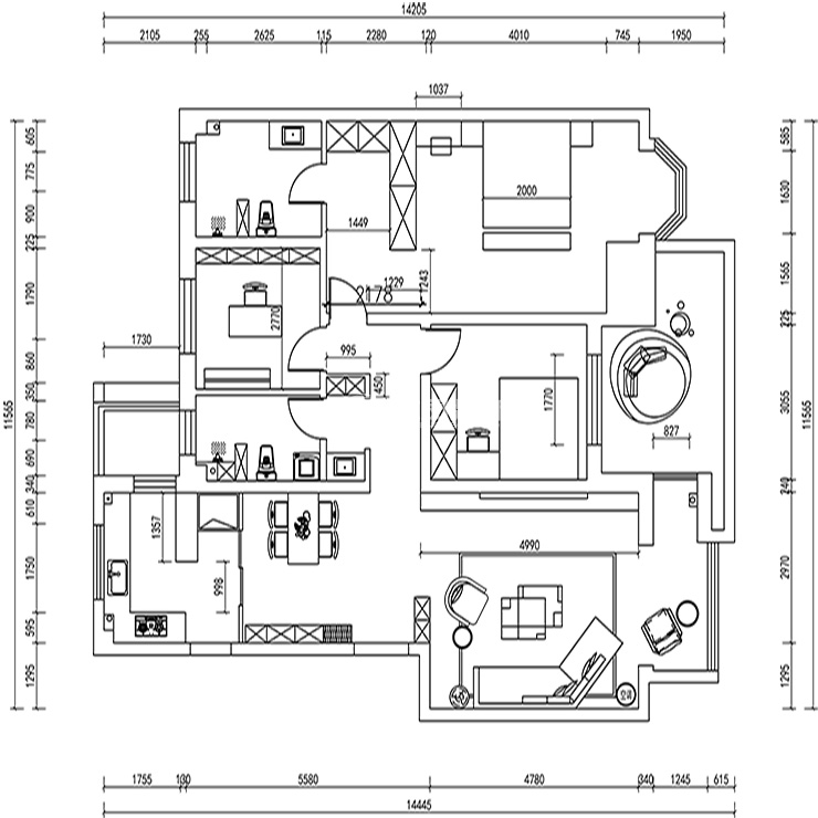
户型图
第1张
刘云静-藏珑1620-现代奶油风格-140㎡-客餐厅1.jpg 刘云静-藏珑1620-现代奶油风格-140㎡-客餐厅2.jpg 刘云静-藏珑1620-现代奶油风格-140㎡-首图.jpg

客厅说明: 沙发背后柜体设计,两边设计开放格搭配悬空电视柜的同时又不失大气

刘云静-藏珑1620-现代奶油风格-140㎡-客餐厅.jpg

餐厅说明: 餐厅角落设计,餐桌的材质为大理石材质,凳体采用的颜色和奶油风格相匹配

刘云静-藏珑1620-现代奶油风格-140㎡-次卧.jpg 刘云静-藏珑1620-现代奶油风格-140㎡-主卧.jpg

卧室说明: 主卧室地板设计,简约的柜体搭配奶油风的化妆桌,极简的吊灯完美的体现出现代奶油风格

刘云静-藏珑1620-现代奶油风格-140㎡-卫生间.jpg 刘云静-藏珑1620-现代奶油风格-140㎡-主卫.jpg

卫生间说明: 卫生间灰色瓷砖以及灰色的墙砖,干湿分离

刘云静-藏珑1620-现代奶油风格-140㎡-厨房.jpg

厨房:厨房的墙砖为白色大理石的砖,橱房的下柜为灰色简约,白色的台面尽显干净整洁

刘云静-藏珑1620-现代奶油风格-140㎡-书房.jpg 刘云静-藏珑1620-现代奶油风格-140㎡-户型图.jpg

案例设计师

胡迪

设计师:胡迪

从业时间:14年

设计理念:设计以人为本

预约设计师

算算你家装修多少钱

报名即享丰厚赠品,享半价装修

免费报价
咨询热线:400-656-9909
20190221103704574636.jpg

精品设计案例

20180612134930523248.jpg 服务号二维码.jpg