立即预约 立即预约
免费定制整装家居

免费定制整装家居

一站置家 全程无忧 一省到底
hide.png

当前位置: 首页 > 装修案例效果图 > 城建北尚B区|新古典风格

城建北尚B区|新古典风格 160平 新古典风格效果图

收藏
案例风格 新古典 案例户型 四居 案例面积 160平米
楼盘名称 城建北尚B区 设计师 李承成 案例类型 改善性住宅

设计理念:设计师整体设计理念:设计本身而言,空间的规划,风格的定位,把握居家整体设计风格,合理的布局规划。

客厅
第1张
餐厅
第1张
卧室
第1张
卫生间
第1张
厨房
第1张
过廊
第1张
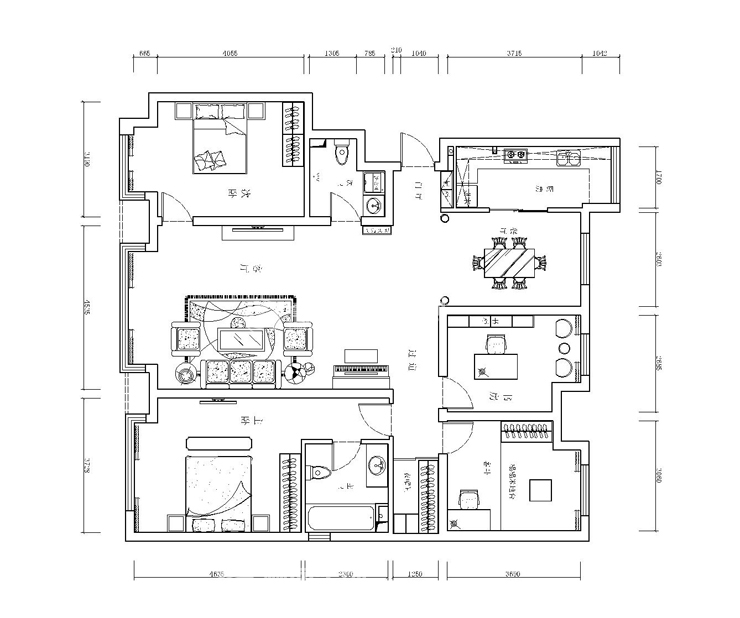
户型图
第1张
城建北尚B区-160平 -新古典风格 -客厅.jpg

客厅说明:深色实木护墙板隐藏门做电视背景墙,整体墙面以欧式风格壁纸为主,地面铺800*800地砖,家具都是新古典风格的沙发、茶几、电视柜。

城建北尚B区-160平- 新古典风格 -餐厅.jpg

餐厅说明:餐厅有实木酒柜,放置六人位的新古典风格的餐桌。餐厅门有着金菲网大理石做罗马柱,是客厅餐厅的中心亮点,显得有品位,高尚。

城建北尚B区-160平 -新古典风格 -主卧室.jpg

卧室:卧室以欧式风格实木床显得沉稳稳重。风格跟整体风格一致,床头背景墙以实木护墙板造型壁纸填充。

城建北尚B区-160平 -新古典风格 -主卫生间.jpg

卫生间说明:新古典风格整套卫浴柜,大理石铺贴的镶嵌浴缸,地面300*300防滑地砖,墙面300*600墙砖横铺显得空间宽敞。整体色调以暖黄色为主显得温馨温度有着家的感觉。

城建北尚B区-160平 -新古典风格 -厨房.jpg

厨房:深色实木橱柜L型橱柜,炉台与洗菜盆黄金区域尺寸合理。操作空间充足。

城建北尚B区-160平- 新古典风格 -过廊.jpg 城建北尚B区-160平 -新古典风格- 平面布置图.jpg

案例设计师

李承成

设计师:李承成

从业时间:15年

设计理念:细节决定品质。

预约设计师

算算你家装修多少钱

报名即享丰厚赠品,享半价装修

免费报价
咨询热线:400-656-9909
20190221103704574636.jpg

精品设计案例

20180612134930523248.jpg 服务号二维码.jpg