立即预约 立即预约
免费定制整装家居

免费定制整装家居

一站置家 全程无忧 一省到底
hide.png

当前位置: 首页 > 装修案例效果图 > 华润置地静安府|现代风格

华润置地静安府|现代风格 150平 现代简约风格效果图

收藏
案例风格 现代简约 案例户型 四居 案例面积 150平米
楼盘名称 华润置地静安府 设计师 林凤设计师 案例类型 改善性住宅

设计理念:设计师整体设计说明: 本案以极简的设计手法,采用墙板、大板砖以及无主灯相互结合,打造一个时尚舒适且富有现代感的居住空间

客厅
第1张
第2张
餐厅
第1张
卧室
第1张
第2张
卫生间
第1张
第2张
厨房
第1张
衣帽间
第1张
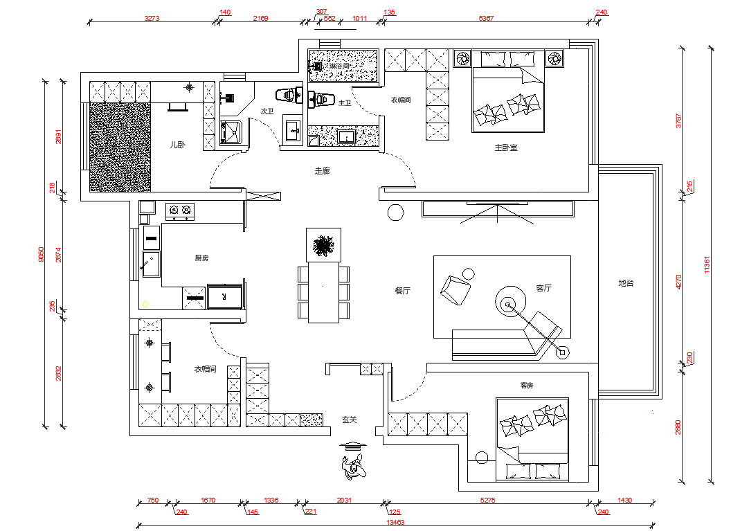
户型图
第1张
s5-曹盼盼-华润置地静安府-150平-现代风格-首图.jpg s5曹盼盼-华润置地静安府-150平-现代风格-客厅.jpg

客厅说明: 客厅采用无主灯设计,洗墙灯、防炫射灯于磁吸灯相互结合使用,增加的整体空间的氛围感,同事背景墙采用墙板于定制的结合,体现了大气时尚的设计感。阳台地台的设计也十分有情调,休息之时可以坐在地台上喝喝茶看看书,甚是惬意。

s5曹盼盼-华润置地静安府-150平-现代风格-餐厅 .jpg

餐厅说明:餐厅岛台的设计外观时尚,不仅可以摆放鲜花愉悦心情还可以在休闲时刻当做吧台使用。餐桌设计则选择了插入式设计,触发了视觉的延伸感,满足了就餐、吧台的功能性。

s5曹盼盼-华润置地静安府-150平-现代风格-主卧.jpg s5曹盼盼-华润置地静安府-150平-现代风格-次卧.jpg s5曹盼盼-华润置地静安府-150平-现代风格-次卫.jpg s5曹盼盼-华润置地静安府-150平-现代风格-主卫.jpg

卫生间说明:由于次卫空间比较小,因此次卫采用了钻石型浴屏设计,起到了干湿分离作用。瓷砖则选择了400*800地砖上墙,也拉伸了整个卫生间的空间感。

s5曹盼盼-华润置地静安府-150平-现代风格-厨房.jpg

厨房说明:厨房采用浅灰色和白色,柜门形成明显的颜色对比,使整个空间显得干净整洁,厨房同时也配备了很多功能性电器,例如集成灶与蒸烤箱的一体选择,高柜里的净水机选择恰恰体现了客户对品质生活的追求。

s5曹盼盼-华润置地静安府-150平-现代风格-衣帽间.jpg 华润置地静安府-150平-现代风格-平面图.jpg

案例设计师

林凤设计师

设计师:林凤设计师

从业时间:0年

设计理念:

预约设计师

算算你家装修多少钱

报名即享丰厚赠品,品质装修

免费报价
咨询热线:400-656-9909
20190221103704574636.jpg

精品设计案例

20180612134930523248.jpg 服务号二维码.jpg