立即预约 立即预约
免费定制整装家居

免费定制整装家居

一站置家 全程无忧 一省到底
hide.png

当前位置: 首页 > 装修案例效果图 > 保利香槟国际|美式轻奢

保利香槟国际|美式轻奢 135平 轻奢风格效果图

收藏
案例风格 轻奢 案例户型 二居 案例面积 135平米
楼盘名称 保利香槟国际 设计师 邵丹 案例类型 改善性住宅

设计理念:设计师整体设计理念:本案是美式轻奢风格、客户是一位单身成功女士 平时也是一个人居住 最多两个人 客户平时上班比较忙 一看做事也是雷厉风行那种、所以回家想放松一些、所以没有给客户选择中式、港式等 棱角比较分明的风格。

客厅
第1张
第2张
第3张
餐厅
第1张
卧室
第1张
第2张
卫生间
第1张
第2张
书房
第1张
门厅
第1张
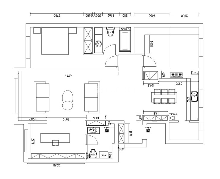
户型图
第1张
保利香槟国际-135平-美式轻奢-客厅_副本.jpg 保利香槟国际-135平-美式轻奢-客厅1.jpg 保利香槟国际-135平-美式轻奢-客厅3.jpg

客厅说明: 客厅的电视背景墙是实木混油护墙板、整体的色调和门踢脚线做到一致、中间的背景墙做的是硬包、客厅和书房之间是开放式格局、沙发也是不同于正常的摆放方法、做成会客厅行事、客厅也不要电视、平时房主也很少有时间回家看电视

保利香槟国际-135平-美式轻奢-餐厅.jpg

餐厅及厨房说明:开放式的厨房和餐厅融入在一起 做整体化设计、棚面没有用传统的集成吊顶 而是用石膏板取代了、这样看着更宽敞、橱柜和酒柜做整体化设计、颜色版型做到统一、从餐厅到客厅一样的色调一样的材质、更加整体

保利香槟国际-135平-美式轻奢-北卧.jpg 保利香槟国际-135平-美式轻奢-主卧.jpg

卧室说明:主卧室的背景墙也是跟客户一样的材质混油的护墙板更整体风格更搭 嵌入式的衣柜 显得空间整体化一些

保利香槟国际-135平-美式轻奢-卫生间.jpg 保利香槟国际-135平-美式轻奢-卫生间2.jpg

卫生间说明:主卧卫生间和公共卫生间都是采用的灰色瓷砖、搭配白色的陶瓷洁具 对比鲜明 简单大气、主卧放了一个浴缸、没有做浴屏 然后洗衣机放在单独的洗衣间里面、

保利香槟国际-135平-美式轻奢-书房.jpg 保利香槟国际-135平-美式轻奢-玄关.jpg 保利香槟国际后改图纸.jpg

案例设计师

邵丹

设计师:邵丹

从业时间:8年

设计理念:细节决定品质。

预约设计师

算算你家装修多少钱

报名即享丰厚赠品,品质装修

免费报价
咨询热线:400-656-9909
20190221103704574636.jpg

精品设计案例

20180612134930523248.jpg 服务号二维码.jpg