立即预约 立即预约
免费定制整装家居

免费定制整装家居

一站置家 全程无忧 一省到底
hide.png

当前位置: 首页 > 装修案例效果图 > 中粮隆越祥云|现代简约

中粮隆越祥云|现代简约 130平 现代简约风格效果图

收藏
案例风格 现代简约 案例户型 三居 案例面积 130平米
楼盘名称 中粮隆越祥云 设计师 白涵琦 案例类型 改善性住宅

设计理念:现代简约风格其着重点就在于简,即外形简洁,室内空间朴素、大方,但其功能性强。从细节上来说,即物品的摆放要整洁,装饰的物品要少,在颜色和布局上来说,颜色的种类不要太多,布局要大方,格调要简洁、素雅。

客厅
第1张
第2张
餐厅
第1张
卧室
第1张
卫生间
第1张
厨房
第1张
书房
第1张
儿童房
第1张
第2张
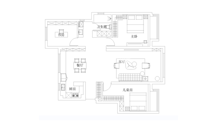
户型图
第1张
中粮隆悦祥云-130平-现代简约-客厅.jpg 中粮隆悦祥云-130平-现代简约-首图.jpg

客厅说明:客厅经过精心布置。电视背景墙并不复杂,更显得简约大方,展示柜采用灰黑色,地面设计灰色百搭,以及精致的沙发、圆形的茶几、个性化的装饰,显得整体空间简约又不缺设计感。

中粮隆悦祥云-130平-现代简约-餐厅.jpg 中粮隆悦祥云-130平-现代简约-主卧.jpg 中粮隆悦祥云-130平-现代简约-卫生间.jpg

卫生间说明:卫生间采用地砖上墙,地砖墙砖都采用灰色素板瓷砖铺贴,让卫生间更立体,整体的色调给人一种大气简约的感觉。

中粮隆悦祥云-130平-现代简约-厨房.jpg

厨房说明: 厨房采用半开放式U型厨房,橱柜与吧台相对,更显现出一种对立之感,却又不显突兀,采用灰白黑来进行搭配,白色的台面和墙砖更加干净简洁。

中粮隆悦祥云-130平-现代简约-书房.jpg 中粮隆悦祥云-130平-现代简约-儿童房1.jpg 中粮隆悦祥云-130平-现代简约-儿童房2.jpg 中粮隆悦祥云-130平-现代简约-平面图.jpg

案例设计师

白涵琦

设计师:白涵琦

从业时间:10年

设计理念:设计实现客户家居梦想

预约设计师

算算你家装修多少钱

报名即享丰厚赠品,享半价装修

免费报价
咨询热线:400-656-9909
20190221103704574636.jpg

精品设计案例

20180612134930523248.jpg 服务号二维码.jpg