立即预约 立即预约
免费定制整装家居

免费定制整装家居

一站置家 全程无忧 一省到底
hide.png

当前位置: 首页 > 装修案例效果图 > 世代龙泽湾|奶油风

世代龙泽湾|奶油风 106平 其他风格效果图

收藏
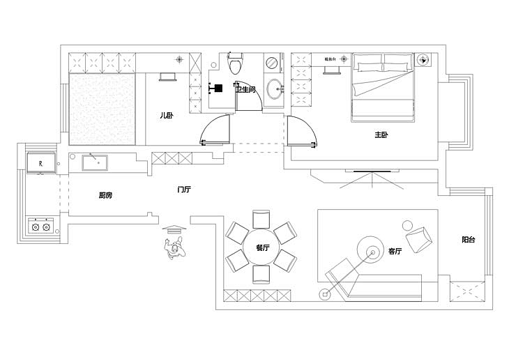
案例风格 其他 案例户型 二居 案例面积 106平米
楼盘名称 世代龙泽湾 设计师 林凤设计师 案例类型 改善性住宅

设计理念:整体设计理念:本案以奶油风设计为中心点,质地温馨,色彩甜美,以细腻的奶油色为主线,诠释了一种温和简约的生活方式。

客厅
第1张
第2张
第3张
第4张
餐厅
第1张
卧室
第1张
第2张
第3张
第4张
卫生间
第1张
第2张
厨房
第1张
第2张
门厅
第1张
户型图
第1张
龙泽湾-106平-奶油风格-电视背景墙1.jpg 龙泽湾-106平-奶油风格-沙发背景墙.jpg 龙泽湾-106平-奶油风格-客厅1.jpg 龙泽湾-106平-奶油风格-首图.jpg

客厅说明: 客厅在走廊跟阳台口的设计上采用了弧角设计,这样整体空间看起来不那么坚硬。客厅沙发了选择也是非常温馨且舒适布艺沙发,累了的时候我在里面暖暖的,让疲惫的身躯一下子放松下来。客厅整体则采用可可单奶颜色乳胶漆饰面,结合地面的柔光砖在搭配木质元素,安静而美好。

龙泽湾-106平-奶油风格-餐厅.jpg

餐厅说明:餐厅的设计主要体现在餐边柜上,2米的餐边在日常使用中满足了一家人对小电器放置需求以及储物收纳功能。而餐桌的选择则采用了圆形餐桌,因客餐厅设计在一个大空间,那么圆形的餐桌无形增加了空间的视觉感以及实用性。

龙泽湾-106平-奶油风格-次卧.jpg 龙泽湾-106平-奶油风格-次卧1.jpg 龙泽湾-106平-奶油风格-主卧 .jpg 龙泽湾-106平-奶油风格-主卧.jpg

主卧室说明:主卧室女主唯一的要求是要有梳妆台,因为妆台设计方面结合了衣柜的设计,这样整体设计,不仅规避了衣柜门打不开的弊端,同时妆台插进衣柜设计也增加了梳妆台的空间使用。主卧墙面也是采用了浅色乳胶漆饰面,配上舒适的布艺床,置身其中仿佛在自然呼吸,满足内心深处的宁静感。

龙泽湾-106平-奶油风格-卫生间.jpg 龙泽湾-106平-奶油风格-卫生间11.jpg

卫生间说明:卫生间门口采用了白色极简边框门配上半截玻璃砖设计方案,墙砖的选择也是打破传统,上版也干净立整的奶油白为主色,下面则选择了清新淡雅的小碎花图案饰面,瞬间增加了卫生间别样视觉。

龙泽湾-106平-奶油风格-厨房.jpg 龙泽湾-106平-奶油风格-厨房1.jpg 龙泽湾-106平-奶油风格-门厅.jpg 龙泽湾-106平-奶油风格-平面图.jpg

案例设计师

林凤设计师

设计师:林凤设计师

从业时间:0年

设计理念:

预约设计师

算算你家装修多少钱

报名即享丰厚赠品,品质装修

免费报价
咨询热线:400-656-9909
20190221103704574636.jpg

精品设计案例

20180612134930523248.jpg 服务号二维码.jpg