立即预约 立即预约
免费定制整装家居

免费定制整装家居

一站置家 全程无忧 一省到底
hide.png

当前位置: 首页 > 装修案例效果图 > 龙湖椿山|现代风格

龙湖椿山|现代风格 150平 现代简约风格效果图

收藏
案例风格 现代简约 案例户型 三居 案例面积 150平米
楼盘名称 龙湖椿山 设计师 孟凡玉 案例类型 改善性住宅

设计理念:设计师整体设计理念:本案为现代简约风格,整体设计主要以暖色系为主,干净又简约的暖色调设计会给人一种温暖的感觉,让人从温暖舒适中感受生活的温度。

客厅
第1张
餐厅
第1张
卧室
第1张
第2张
第3张
第4张
卫生间
第1张
厨房
第1张
书房
第1张
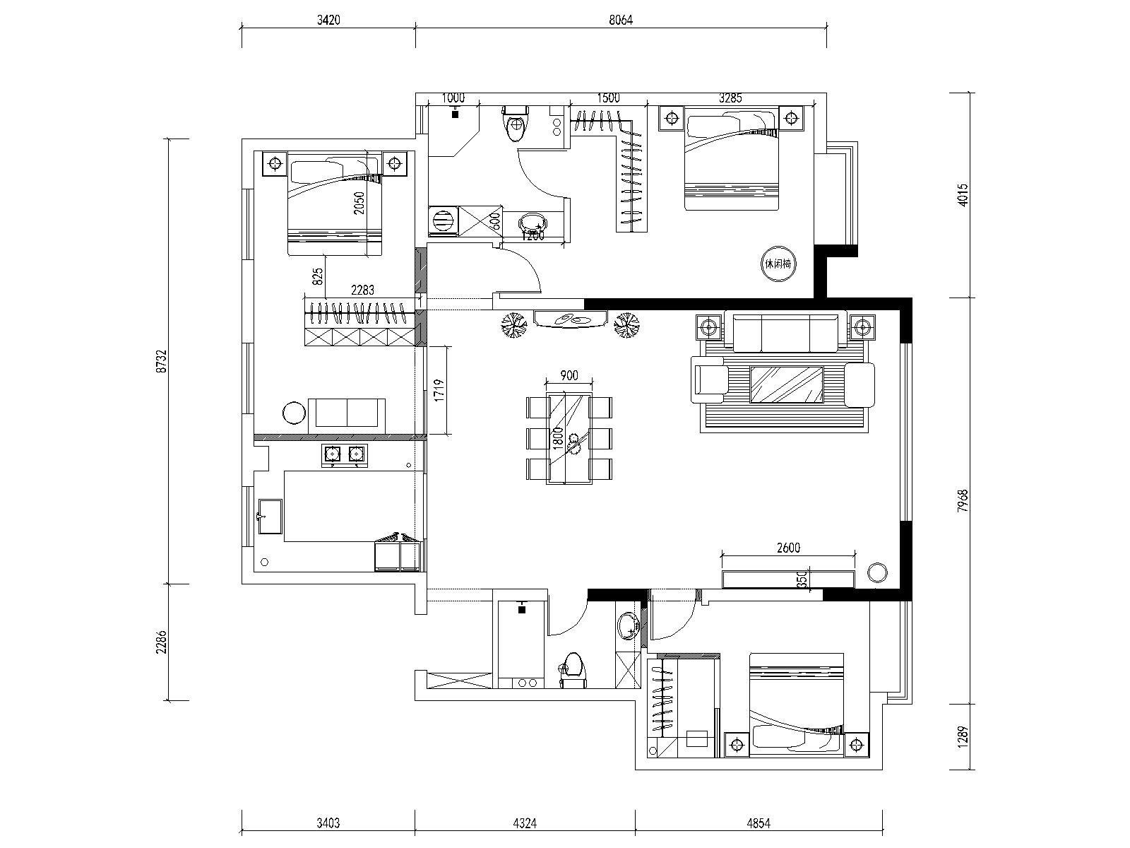
户型图
第1张
81b744209d592d2f6c8d9ca76098ddb.jpg

客厅设计说明:客厅吊棚以无主灯为主,视野通透,电视背景带有南次卧隐形门围绕功能性进行细节处理,软装搭配与地砖色彩呼应更整体化,合理划分空间同时也加大了空间的视觉。

e989005879ac71d7cd36f2f85f6619a.jpg

餐厅设计说明:餐厅顶棚采用了餐吊的设计,餐吊与无主灯的结合增添了空间的氛围感,增添了灯光效果,更具有设计感。

4332868238013a7333229a0b43e3321.jpg 8ba252e96c3b85f8d63ed2e529cd139.jpg b89c485d53284f438193d34ceb6ded9.jpg 26e7c7d2e94ec4e06e1e9248f6f2d48.jpg

1.卧室设计说明:主卧室整体色调以暖色调为主,地面为地板设计与卧室通顶的衣柜色系呼应,通体衣柜显举架较高更大气,抽象的壁灯作为空间增添了协调性。

f7a6bcec4d739693113f246f7292a1e.jpg

卫生间设计说明:卫生间瓷砖采用300*600的暖灰色瓷砖,颜色更高级增添视觉感受,浴室定制柜与边柜结合提升了空间的实用性,整体色系搭配看起来具有高级感。

ef2b8d5728e177616f88decca904c1e.jpg

厨房设计说明:厨房橱柜采用AB版的设计,上面白色干净整洁,下柜暖灰颜色的呼应很有质感,无把手设计让橱柜更简约,台面白色过度,分割了整体空间。

d6416d2e13ed3adc915dbfaaf736307.jpg

书房房设计说明:整体推拉门设计,不浪费使用空间采光更好,书柜与北卧室衣柜结合节省了空间,合理设计没有浪费面积,地板与柜体颜色呼应。

0309bbf6903dfaac47bc30705fa8a10.jpg

案例设计师

孟凡玉

设计师:孟凡玉

从业时间:10年

设计理念:好的设计不只是美,它会让人产生美的 感受,它与生活息息相关

预约设计师

算算你家装修多少钱

报名即享丰厚赠品,品质装修

免费报价
咨询热线:400-656-9909
20190221103704574636.jpg

精品设计案例

20180612134930523248.jpg 服务号二维码.jpg