立即预约 立即预约
免费定制整装家居

免费定制整装家居

一站置家 全程无忧 一省到底
hide.png

当前位置: 首页 > 装修案例效果图 > 龙湖中铁建云景|现代轻奢

龙湖中铁建云景|现代轻奢 135平 轻奢风格效果图

收藏
案例风格 轻奢 案例户型 三居 案例面积 135平米
楼盘名称 龙湖中铁建云景 设计师 林凤设计师 案例类型 改善性住宅

设计理念:设计师整体设计理念:户主倾向现代轻轻奢风,改善型住房 ,所以对空间的改造更加重视 根据户型特点 加以优化 让室内的空间通透感更加强烈 通风采光更加优秀

客厅
第1张
第2张
第3张
餐厅
第1张
卧室
第1张
卫生间
第1张
第2张
儿童房
第1张
门厅
第1张
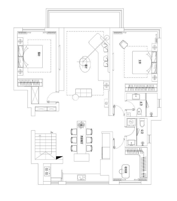
户型图
第1张
龙湖中铁建云璟-135平-现代轻奢-电视背景.jpg 龙湖中铁建云璟-135平-现代轻奢-客厅.jpg 龙湖中铁建云璟-135平-现代轻奢-沙发背景.jpg

客厅说明: 客厅和书房的间墙打通 形成一个大的功能空间 室内格调立马转变 变成全明采光 室内空间感更加开阔 功能布局灵活多变 让会客空间更加灵动

龙湖中铁建云璟-135平-现代轻奢-餐厅.jpg

餐厅说明:餐厅延续客厅配色,彩色的餐椅为空间提亮,石材餐桌强化耐用度抗污力强,美观简洁 不需要太多储物空间 简介明了 形成客 餐 书 三个空间浑然一体

龙湖中铁建云璟-135平-现代轻奢-主卧.jpg

卧室说明:卧室更多的体现储物功能 让空间布局更加合理化 软装搭配更加体现温馨 舒适度

龙湖中铁建云璟-135平-现代轻奢-客卫.jpg 龙湖中铁建云璟-135平-现代轻奢-主卫.jpg

卫生间说明:卫生间做成干湿分区 更加合理 方便使用 空间使用率更高 现代人生活节奏快 体现合理使用上的人性化

龙湖中铁建云璟-135平-现代轻奢-儿童房.jpg 龙湖中铁建云璟-135平-现代轻奢-门厅.jpg 龙湖中铁建云璟-135平-现代轻奢-平面图.jpg

案例设计师

林凤设计师

设计师:林凤设计师

从业时间:17年

设计理念:人因宅而立,宅因人而存,人宅相扶,感天动地,故不可独信命也。

预约设计师

算算你家装修多少钱

报名即享丰厚赠品,享半价装修

免费报价
咨询热线:400-656-9909
20190221103704574636.jpg

精品设计案例

20180612134930523248.jpg 服务号二维码.jpg