立即预约 立即预约
免费定制整装家居

免费定制整装家居

一站置家 全程无忧 一省到底
hide.png

当前位置: 首页 > 装修案例效果图 > 保利达江湾城|现代轻奢

保利达江湾城|现代轻奢 100平 轻奢风格效果图

收藏
案例风格 轻奢 案例户型 二居 案例面积 100平米
楼盘名称 保利达江湾城 设计师 林凤装饰全案设计师 案例类型 改善性住宅

设计理念:设计师整体设计理念:本案采用现代简约风格,利用简单线条的多元化打造空间,利用色彩的对比和整体相近色系来传达业主对生活品质的期许和追求。

客厅
第1张
第2张
第3张
餐厅
第1张
卧室
第1张
卫生间
第1张
第2张
厨房
第1张
门厅
第1张
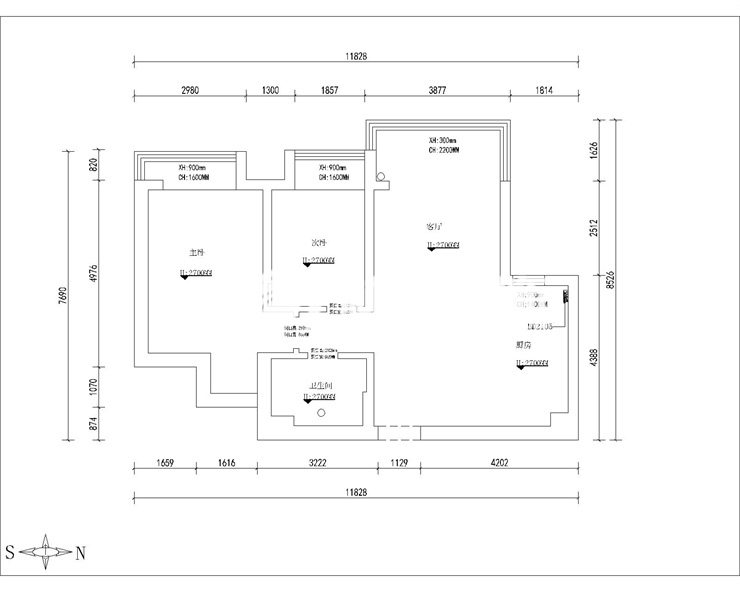
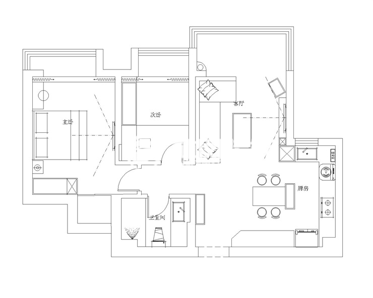
户型图
第1张
第2张
保利达江湾-100-现代轻奢-客厅 (2).jpg 保利达江湾-100-现代轻奢-客厅 (3).jpg 保利达江湾-100-现代轻奢-客厅.jpg

客厅说明:采用无主灯设计来打造空间的延伸感,简单的石膏板吊棚不添加多余的线条,在简约的众多元素里去繁从简,延长风格流行时效。

保利达江湾-100-现代轻奢-餐厅.jpg

餐厅说明:餐厅为橱柜上面装饰直线造型灯,包括餐边柜的灯带设计,保证实用性的前提,色相选择相近色,与橱柜门型照相呼应。

保利达江湾-100-现代轻奢-卧室.jpg

卧室说明:柜体以局部玻璃柜门为主,颜色与背景墙搭配。

保利达江湾-100-现代轻奢-卫生间(2).jpg 保利达江湾-100-现代轻奢-卫生间.jpg

卫生间说明:主卫生间,定制洗手盆,智能马桶,虽然小巧,但是现代感十足。

保利达江湾-100-现代轻奢-厨房.jpg

厨房说明:厨房采用了开放式厨房,餐桌保持动线合理,简单的橱柜门板,免拉手的设计,与整体风格照相呼应。

保利达江湾-100-现代轻奢-玄关.jpg 保利达江湾-100-现代轻奢-平面布置图.jpg 保利达江湾-100-现代轻奢-原始平面图.jpg

案例设计师

林凤装饰全案设计师

设计师:林凤装饰全案设计师

从业时间:5年

设计理念:设计源于生活,细节成就品质。

预约设计师

算算你家装修多少钱

报名即享丰厚赠品,享半价装修

免费报价
咨询热线:400-656-9909
20190221103704574636.jpg

精品设计案例

20180612134930523248.jpg 服务号二维码.jpg