立即预约
免费定制整装家居
一站置家 全程无忧 一省到底
当前位置: 首页 > 装修案例效果图 > 国瑞熙悦|现代轻奢风格
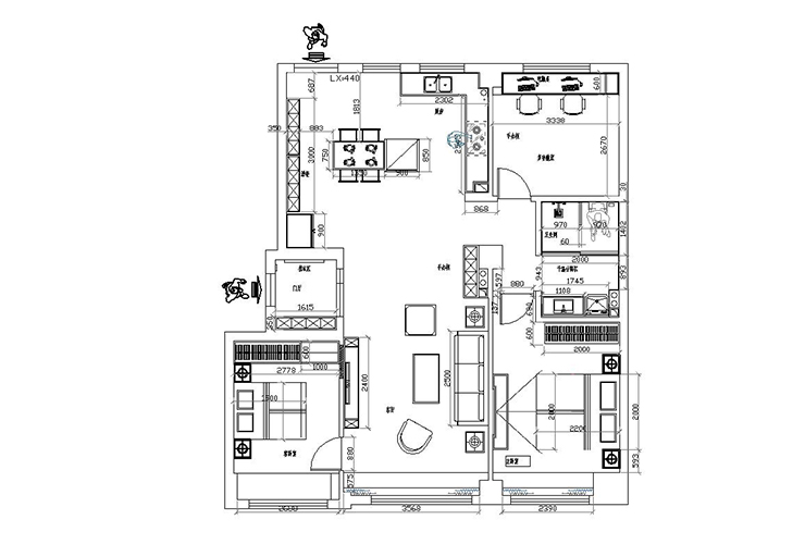
设计理念:设计师整体设计理念:本房设计采用现代轻奢风格,追求简单,整洁,大气的同时,对人感官上要有一定的冲击力,要符合当代年轻宝妈宝爸的审美,保证业主的储物空间,生活空间及宝宝的娱乐空间
客厅说明: 本案户型要求简洁大气,客厅采用无主灯设计,大理石、木质格栅做电视背景墙,地面使用灰色大理石瓷砖通铺,储物柜使用玻璃门板,更显大气
卧室说明:卧室有柜子的地方做柜帽,剩余位置简单的走一圈石膏线,衣柜拉手加长,做隐藏式拉手,大吊灯作为主光源,床头位置上方加两个低功率小吊灯,外观美观的同时灯光对眼睛还起到保护的作用 ,乳胶漆做背景墙,背景墙上用挂画进行点缀
卫生间说明: 卫生间洗手台使用悬空式洗手台,清扫时不留卫生死角,干湿分离布局,干区同卧室客餐厅一起大地砖通铺,墙砖采用300*600长瓷片上墙,空间显大又美观
厨房说明:做开放式厨房,使用L型橱柜,整体宽敞,大理石台面,布局符合洗切炒的流程更合理,墙砖用白色花纹300*600的瓷片上墙,橱柜采用米黄色,与白色墙砖搭配不单调,且简约大气
书房说明;书桌书柜一体靠窗,节省空间的同时可以在后方放一个单人床,既不影响办公使用,又增加了休息空间,墙体一侧做壁龛放置小摆件,另一侧用挂画点缀不单调
精品设计案例
设计说明:
三室两厅一厨两卫,高层整体采用美式风格,色调以深色为主,体现美式的居家感和温馨感。
设计说明:
本案业主为年轻时尚小两口,所以我们考虑到未来想要给未来宝宝一个温馨舒适的一个房间,所以本案整体采用现代风格的手法,运用颜色,来打造整体空间的设计感及时尚感
设计说明:
本案以北欧风格为主题的设计,北欧风格能以现代、简洁、自然的特点俘获人心,所营造出来的生活氛围会让人倍感舒适与自在。
设计说明:
客户是一名成功人士,对于家的执念就是简单干净,客户衣服比较多,所以把每个空间都做了大衣柜,并且融入到设计里