立即预约 立即预约
免费定制整装家居

免费定制整装家居

一站置家 全程无忧 一省到底
hide.png

当前位置: 首页 > 装修案例效果图 > 保利和光屿湖|现代简约

保利和光屿湖|现代简约 145平 现代简约风格效果图

收藏
案例风格 现代简约 案例户型 四居 案例面积 145平米
楼盘名称 保利和光屿湖 设计师 林凤设计师 案例类型 改善性住宅

设计理念:设计师整体设计理念: 视线安排:视线,与人的走动有关,通常也跟动线联系在一起。动线设计:动线是连接房子各个空间的廊道,也希望能提高它真正的使用价值。空间格局:规划良好的空间可以分配的很精细,可以在使用时打破格局、充满弹性。收纳空间:收纳空间要做到定位,纳之无形,不仅使空间平衡,还要涵盖未来家族成员的新需求与变化。自然引入:将自然元素直接或间接的引入室内,随心、随季、随时,给家别样的自然表情

客厅
第1张
第2张
第3张
餐厅
第1张
卧室
第1张
第2张
卫生间
第1张
第2张
厨房
第1张
儿童房
第1张
第2张
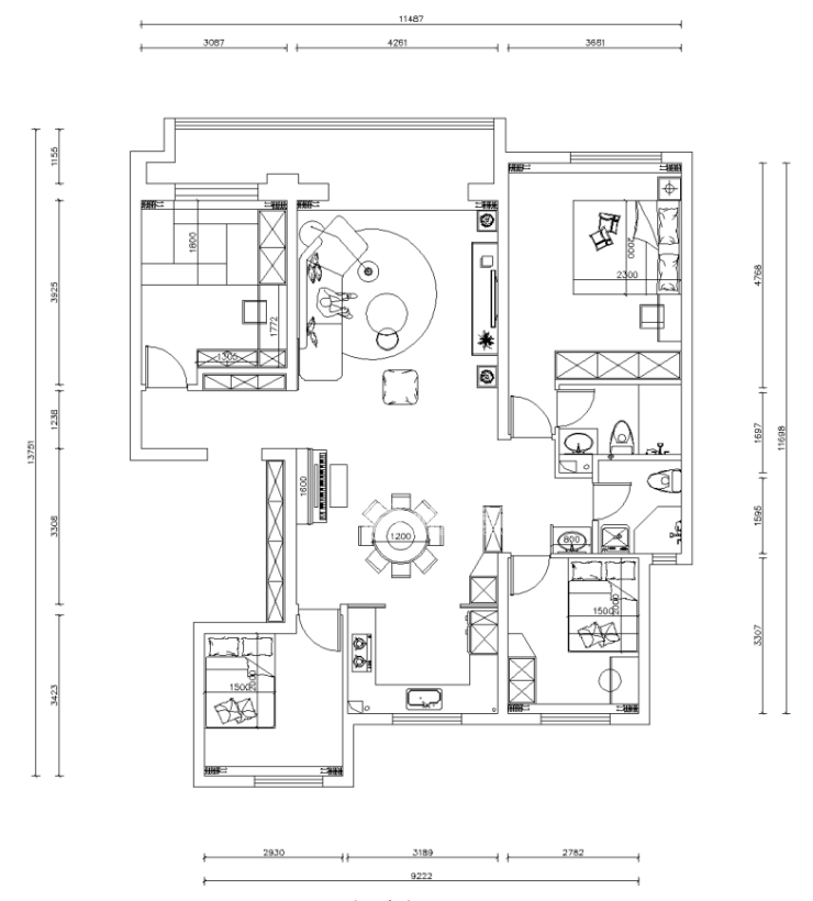
户型图
第1张
保利和光屿湖-145平-现代风格-电视背景墙.jpg 保利和光屿湖-145平-现代风格-客厅.jpg 保利和光屿湖-145平-现代风格-首图.jpg

客厅说明:以横平竖直的线型搭配护墙跟岩板提升整个空间的层次感,整体色调灰白为主局部搭配橙色作为点缀,素雅却大方,简约略显高级感。简单素雅的背景配以灰白系花纹的岩板与电视背景墙相呼应,岩板侧边配以灯光条拉开层次,以简单的结构方式构造极具高级空间感。

保利和光屿湖-145平-现代风格-餐厅.jpg

餐厅说明; 根据空间的局限性采用圆桌的设计方式,墙面以干净素雅的墙板与圆桌完美融合,且不降低功能实用性的同时增强了居家娱乐性,从而提升生活品质。

保利和光屿湖-145平-现代风格-老人房.jpg 保利和光屿湖-145平-现代风格-主卧.jpg

主卧室说明; 整体空间以浅色作为主色调,让人一下释放所有的压力,背景大面积黑色块面突出了视觉层次感。主卧背景和梳妆台背景相同的方式呈现,往往总带给人多样的惊喜,克制的简洁、有度的张扬。

保利和光屿湖-145平-现代风格-客卫.jpg 保利和光屿湖-145平-现代风格-主卫.jpg

卫生间说明:卫生间的问题就是要对这个空间做一个整体的设计。卫生间具有清洗、浴室、厕所三种功能,因此我们要先设计好收纳柜和卫浴用品的位置。将这个有限的空间做一个合理的整体规划,只有做好了整体规划才能做进一步的细节处理。

保利和光屿湖-145平-现代风格-厨房.jpg

厨房说明: 相对于易清洁,收纳也是极为重要的。橱柜收纳的正确划分为:上轻下重中间常用。对于自己选择的水池,洗碗池,烤箱,油烟机等等都要合理规划好位置,这样收纳空间更大!

保利和光屿湖-145平-现代风格-男孩房jpg.jpg 保利和光屿湖-145平-现代风格-女孩房.jpg 保利和光屿湖-145平-现代风格-平面布局图.jpg

案例设计师

林凤设计师

设计师:林凤设计师

从业时间:8年

设计理念:无创新,不设计;设计来源于生活,细节成就品质。

预约设计师

算算你家装修多少钱

报名即享丰厚赠品,享半价装修

免费报价
咨询热线:400-656-9909
20190221103704574636.jpg

精品设计案例

20180612134930523248.jpg 服务号二维码.jpg