立即预约 立即预约
免费定制整装家居

免费定制整装家居

一站置家 全程无忧 一省到底
hide.png

当前位置: 首页 > 装修案例效果图 > 高新君园|新中式

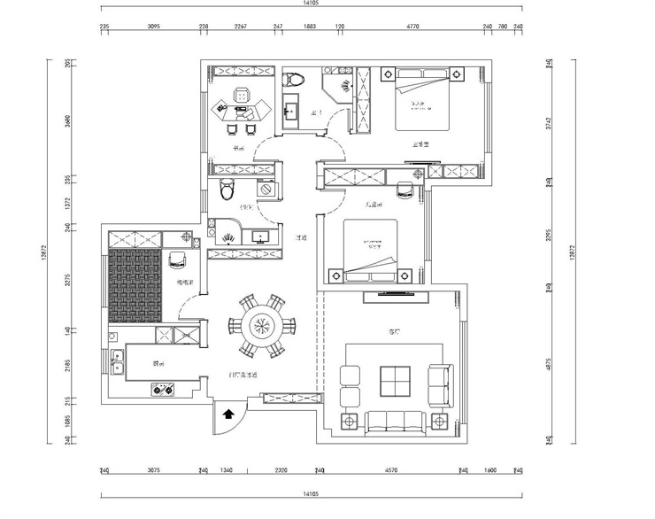
高新君园|新中式 147平 中式风格效果图

收藏
案例风格 中式 案例户型 一居 案例面积 147平米
楼盘名称 高新君园 设计师 王杰 案例类型 改善性住宅

设计理念:房子为客户自住、改善性住房,业主追求干净、传统、古朴的生活环境,同时对格局有很大期望,所以,本案已实用及合理性做布局,定义为新中式风格。

客厅
第1张
第2张
餐厅
第1张
卧室
第1张
第2张
卫生间
第1张
第2张
厨房
第1张
书房
第1张
第2张
户型图
第1张
高新君园-147平米-新中式风格-客厅.jpg 高新君园-147平米-新中式风格-首图.jpg

客厅说明: 用白色调和房间的基调,一种高级感在空间展开。

高新君园-147平米-新中式风格-餐厅.jpg 高新君园-147平米-新中式风格-主卧.jpg 高新君园-147平米-新中式风格-主卧1.jpg

卧室说明: 卧室区域是主要休息放松的地方。主卧延续了整个户型干净简约的调性。

高新君园-147平米-新中式风格-卫生间.jpg 高新君园-147平米-新中式风格-卫生间1.jpg

卫生间说明:已灰色亮光瓷砖为主,体现大气、简洁又不失档次。

高新君园-147平米-新中式风格-厨房.jpg

厨房说明:采用中式厨房封闭设计,实现独立操作的同时,增加了整体储藏及空间实用性。

高新君园-147平米-新中式风格-书房.jpg 高新君园-147平米-新中式风格-书房2.jpg 布局图.jpg

案例设计师

王杰

设计师:王杰

从业时间:7年

设计理念:因生活而设计,因设计而完美。

预约设计师

算算你家装修多少钱

报名即享丰厚赠品,品质装修

免费报价
咨询热线:400-656-9909
20190221103704574636.jpg

精品设计案例

20180612134930523248.jpg 服务号二维码.jpg