立即预约 立即预约
免费定制整装家居

免费定制整装家居

一站置家 全程无忧 一省到底
hide.png

当前位置: 首页 > 装修案例效果图 > 军官家园|现代简约

军官家园|现代简约 120平 现代简约风格效果图

收藏
案例风格 现代简约 案例户型 二居 案例面积 120平米
楼盘名称 军官家园 设计师 林凤设计师 案例类型 改善性住宅

设计理念:设计理念: 将简洁的设计融入生活中,每个区域的功能性和美观性的结合,让业主的家更舒适。

客厅
第1张
第2张
餐厅
第1张
卧室
第1张
第2张
卫生间
第1张
第2张
第3张
厨房
第1张
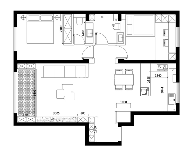
户型图
第1张
军官家园-120平-现代简约-客厅.jpg 军官家园-120平-现代简约-客厅1.jpg

客厅说明: 以浅色系位置搭配木纹色的地台和柜子,让整体空间增加了温馨的元素姜黄色的点缀色让客厅空间画面更立体,家具的选择,让线条感更硬朗。

军官家园-120平-现代简约-餐厅.jpg

餐厅说明: 餐厅与吧台相连,一厨房形成呼应,色彩上也从客厅过渡到了餐厅,冰箱的位置也方便了厨房和餐厅的使用。

军官家园-120平-现代简约-次卧室.jpg 军官家园-120平-现代简约-卧室.jpg

主卧室说明: 卧室床头柜与床头一起定制,下面悬空方便打理,主卧室衣柜柜门断开,方便开关收纳。

军官家园-120平-现代简约-次卫生间.jpg 军官家园-120平-现代简约-主卫生间.jpg 军官家园-120平-现代简约-主卫生间1.jpg

卫生间说明:壁挂式坐便更美观,并且方便打理,整体的定制洗手台方便了女主人摆放化妆品。

军官家园-120平-现代简约-厨房.jpg 军官家园-120平-现代简约-平面图.jpg

案例设计师

林凤设计师

设计师:林凤设计师

从业时间:5年

设计理念:经验和习惯的沉淀,时尚与美观的结合

预约设计师

算算你家装修多少钱

报名即享丰厚赠品,享半价装修

免费报价
咨询热线:400-656-9909
20190221103704574636.jpg

精品设计案例

20180612134930523248.jpg 服务号二维码.jpg