立即预约 立即预约
免费定制整装家居

免费定制整装家居

一站置家 全程无忧 一省到底
hide.png

当前位置: 首页 > 装修案例效果图 > 中海盛京阁

中海盛京阁 90平 新中式风格效果图

收藏
案例风格 新中式 案例户型 二居 案例面积 90平米
楼盘名称 中海盛京阁 设计师 林凤设计师 案例类型 婚房

设计理念:本案是新中式现代风格,采用现代造型,家具中式韵味十足。清俗含蓄,端庄典雅。相对中式风格来讲新中式更加符合现代人的生活要求。例如简介的吊顶,抽象画,现代的装饰柜大大拉进现代与中式的距离。在这套方案的搭配上,大部分选择了深木色木线装饰,墙面米色乳胶漆,使空间感更加丰富。在软装搭配上,家具造型比较中式,搭配几个爱马仕橙色的靠包更加俏皮,整体空间颜色活泼起来。

客厅
第1张
第2张
第3张
餐厅
第1张
卧室
第1张
第2张
卫生间
第1张
厨房
第1张
门厅
第1张
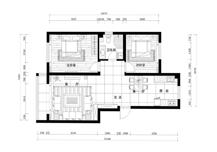
户型图
第1张
  • 案例详情

郑思雨-中海盛京阁-90-新中式风格-客厅3.jpg 郑思雨-中海盛京阁-90-新中式风格-客厅2.jpg 郑思雨-中海盛京阁-90-新中式风格-客厅1.jpg

客厅造型丰富,元素多样化,现代元素与中式家具的混合搭配,电视背景墙使用木线格做两侧收边,中间铺一面花鸟图壁纸,韵味十足。沙发背景虽没有做复杂造型但是挂几幅水墨画更能使空间素雅又不失中式风格的特色。3:整个客厅的吊顶采用现代在造型用虚光点缀更有现代感。

郑思雨-中海盛京阁-90-新中式风格-餐厅.jpg

餐厅中式韵味十足的桌椅搭配橙色得桌旗以及餐厅墙的抽象挂画,一个中式一个现代,相互呼应。餐厅吊灯选择趣味蜡烛灯,放在整个餐厅的空间里恰巧与客厅的吊灯相呼应。

郑思雨-中海盛京阁-90-新中式风格-卧室2.jpg 郑思雨-中海盛京阁-90-新中式风格-卧室1.jpg

主卧室造型简洁顶面走木角线,床头背景墙铺一面壁纸,使空间更加丰富,衣柜和床头柜都比较有中式风格的特色,整体色彩搭配完全符合男女主人对新中式的要求。

郑思雨-中海盛京阁-90-新中式风格-卫生间.jpg

卫生间的设计迎合了女主人的要求,女主人比较喜欢米黄色的瓷砖,所以地面墙面都选用米黄色瓷砖铺贴,整体感更强。迎合房主的要求卫生间做了一个淋浴房,顶面选择铝扣板集成吊顶。浴室柜选择一款中式味道的柜子,黑金花理石台面更显得有档次。

郑思雨-中海盛京阁-90-新中式风格-厨房.jpg

厨房按照女主人的喜好选择香槟色实柜门,整体橱柜现代风格。开敞式厨房使空间更加开阔。墙面墙砖选择米白色墙砖,地面地砖选择水泥灰地砖,比较素雅。

郑思雨-中海盛京阁-90-新中式风格-门厅.jpg 郑思雨-中海盛京阁-90-新中式风格-户型图.jpg

案例设计师

林凤设计师

设计师:林凤设计师

从业时间:6年

设计理念:一切随心,用心去感悟空间

预约设计师

算算你家装修多少钱

报名即享丰厚赠品,享半价装修

免费报价
咨询热线:400-656-9909
20190221103704574636.jpg

精品设计案例

20180612134930523248.jpg 服务号二维码.jpg