立即预约 立即预约
免费定制整装家居

免费定制整装家居

一站置家 全程无忧 一省到底
hide.png

当前位置: 首页 > 装修案例效果图 > 首创禧瑞长河|现代风格

首创禧瑞长河|现代风格 300平 现代简约风格效果图

收藏
案例风格 现代简约 案例户型 四居 案例面积 300平米
楼盘名称 首创禧瑞长河 设计师 张景新 案例类型 改善性住宅

设计理念:设计师整体设计理念: 我们认为的繁简尺度:比极简多,比极多少,无法在一片纯白的实验室般的空间存活,感觉连自己的存在都是多余。还是要有自己喜欢的各种玩意才心安自在。

客厅
第1张
第2张
第3张
餐厅
第1张
卧室
第1张
第2张
卫生间
第1张
第2张
第3张
第4张
第5张
第6张
厨房
第1张
书房
第1张
儿童房
第1张
休闲区
第1张
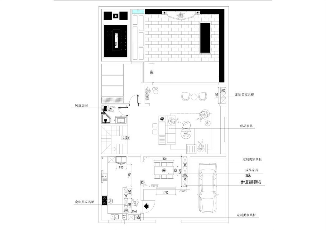
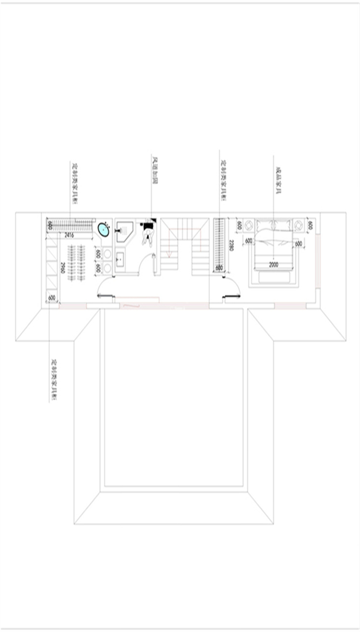
户型图
第1张
第2张
第3张
首创禧瑞长河-300平-现代风格-客厅 .jpg 首创禧瑞长河-300平-现代风格-客厅2.jpg 首创禧瑞长河-300平-现代风格-客厅3.jpg

设计师整体设计理念: 我们认为的繁简尺度:比极简多,比极多少,无法在一片纯白的实验室般的空间存活,感觉连自己的存在都是多余。还是要有自己喜欢的各种玩意才心安自在。

首创禧瑞长河-300平-现代风格-餐厅.jpg 首创禧瑞长河-300平-现代风格-客卧 .jpg 首创禧瑞长河-300平-现代风格-主卧.jpg

卧室说明: 主卧没有过多的装饰,设计师将极简的手法与高级灰的色调融合,营造出静谧安静的睡眠环境。个性吊灯和造型壁挂灯,作为亮点点缀,丰富空间的层次,更有一份沉稳与精致感。

首创禧瑞长河-300平-现代风格-二楼卫生间 .jpg 首创禧瑞长河-300平-现代风格-三楼卫生间 .jpg 首创禧瑞长河-300平-现代风格-一楼卫生间 .jpg 首创禧瑞长河-300平-现代风格-主卫 .jpg 首创禧瑞长河-300平-现代风格-主卫 2.jpg 首创禧瑞长河-300平-现代风格-主卫3.jpg

卫生间说明: 浴缸的设计使在有限空间内,给业主提供更多的生活可能性;大理石的墙面地面,给主卫不言而喻的高级质感;

首创禧瑞长河-300平-现代风格-厨房 .jpg

厨房说明:整个厨房呈U型布局,这样男业主的精神食粮再也不用担心没有空间储存了,及时妈妈来了也能让老妈的厨艺在这空间内很好的展现,做饭时的洗切炒动作只要转身就可随时切换,同时还提供了充足的操作台面和收纳空间,让每一个细节都更加舒适。

首创禧瑞长河-300平-现代风格-书房 .jpg 首创禧瑞长河-300平-现代风格-儿童房 .jpg 首创禧瑞长河-300平-现代风格-多功能室.jpg 首创禧瑞长河-300平-现代风格-二楼平图.jpg 首创禧瑞长河-300平-现代风格-三楼平图.jpg 首创禧瑞长河-300平-现代风格-一楼平图.jpg

案例设计师

张景新

设计师:张景新

从业时间:6年

设计理念:合理的划分空间,让设计融入生活,营造自然,品味,格调

预约设计师

算算你家装修多少钱

报名即享丰厚赠品,享半价装修

免费报价
咨询热线:400-656-9909
20190221103704574636.jpg

精品设计案例

20180612134930523248.jpg 服务号二维码.jpg