立即预约 立即预约
免费定制整装家居

免费定制整装家居

一站置家 全程无忧 一省到底
hide.png

当前位置: 首页 > 装修案例效果图 > 盛世园田居|现代

盛世园田居|现代 200平 现代简约风格效果图

收藏
案例风格 现代简约 案例户型 三居 案例面积 200平米
楼盘名称 盛世园田居 设计师 王禹厶 案例类型 儿童房

设计理念:设计师整体设计理念:利用灯光以及软装相互搭配,享受温馨的家带来的幸福感。

客厅
第1张
第2张
餐厅
第1张
卧室
第1张
第2张
第3张
卫生间
第1张
第2张
厨房
第1张
衣帽间
第1张
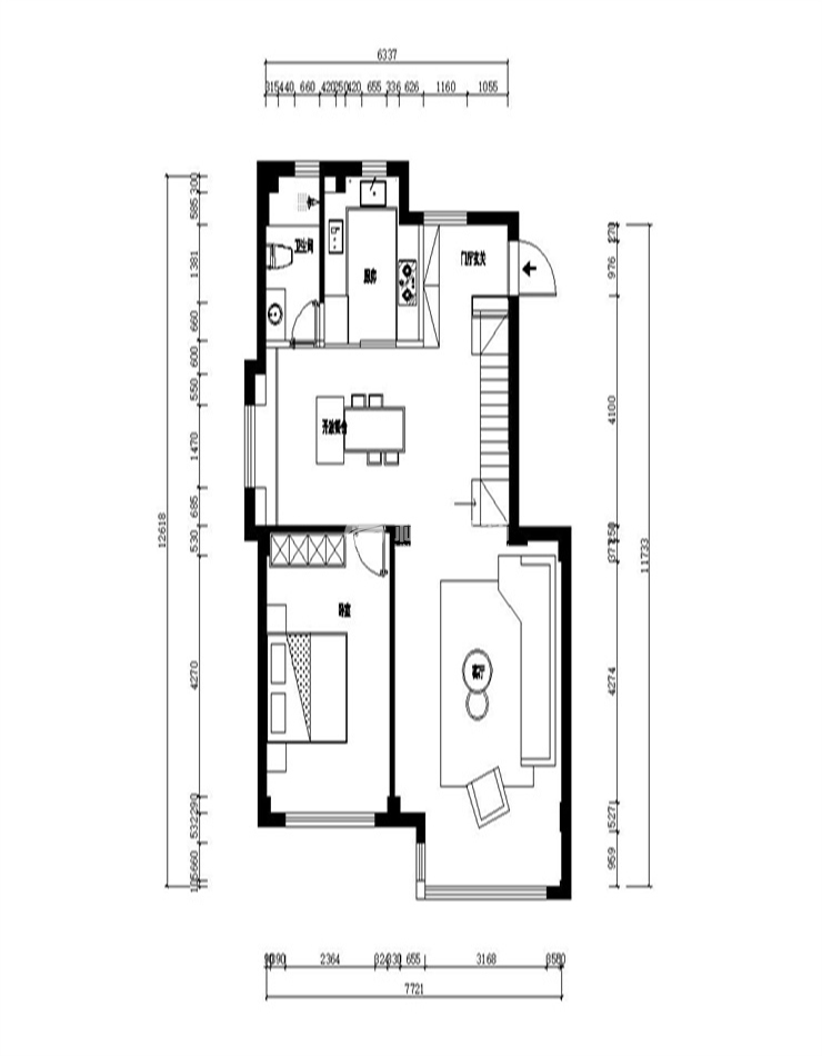
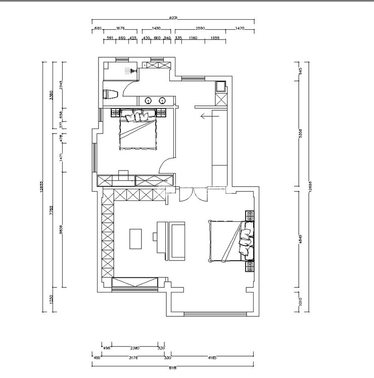
户型图
第1张
第2张
盛世园田居-200平现代简约-首图.jpg 盛世园田居-200平现代简约-客餐厅 5.jpg

客厅电视背景墙采用木栅格的方式,优雅大方 ,沙发背景墙与沙发搭配,蓝色点缀,给人舒适,温馨的感觉。

盛世园田居-200平现代简约-客餐厅.jpg

餐厅说明: 大理石桌面搭配灰色餐椅,给人干净整洁的舒适感。

盛世园田居-200平现代简约-次卧 .jpg 盛世园田居-200平现代简约-次卧.jpg 盛世园田居-200平现代简约-主卧 (3).jpg

主卧室说明:主卧空间较大,床对面配有可休憩的沙发,橙色抱枕作为跳色,给人高级感,整体搭配给人营造静谧的舒适的空间感受。

盛世园田居-200平现代简约-卫生间 10.jpg 盛世园田居-200平现代简约-卫生间 (2).jpg

卫生间说明:通铺瓷砖,提升空间视觉效果,使整个卫生间环境干净整洁。

盛世园田居-200平现代简约-厨房.jpg

厨房说明:采用封闭式厨房。隐藏式拉手,搭配白色石英石台面,整体搭配出一种舒适高级感。

盛世园田居-200平现代简约-衣帽间 .jpg 盛世园田居-200平-现代简约-户型图1.jpg 盛世园田居-200平-现代简约-户型图2.jpg

案例设计师

王禹厶

设计师:王禹厶

从业时间:10年

设计理念:坚持原创,坚持一切美好

预约设计师

算算你家装修多少钱

报名即享丰厚赠品,享半价装修

免费报价
咨询热线:400-656-9909
20190221103704574636.jpg

精品设计案例

20180612134930523248.jpg 服务号二维码.jpg