立即预约 立即预约
免费定制整装家居

免费定制整装家居

一站置家 全程无忧 一省到底
hide.png

当前位置: 首页 > 装修案例效果图 > 首创光合城|现代简约

首创光合城|现代简约 126平 现代简约风格效果图

收藏
案例风格 现代简约 案例户型 三居 案例面积 126平米
楼盘名称 首创光合城 设计师 林凤设计师 案例类型 改善性住宅

设计理念:将优雅时尚的质感结合着现代材质及装饰技巧巧妙地呈现在居室中,展示着精致高端的生活态度。

客厅
第1张
第2张
第3张
餐厅
第1张
卧室
第1张
第2张
第3张
卫生间
第1张
第2张
衣帽间
第1张
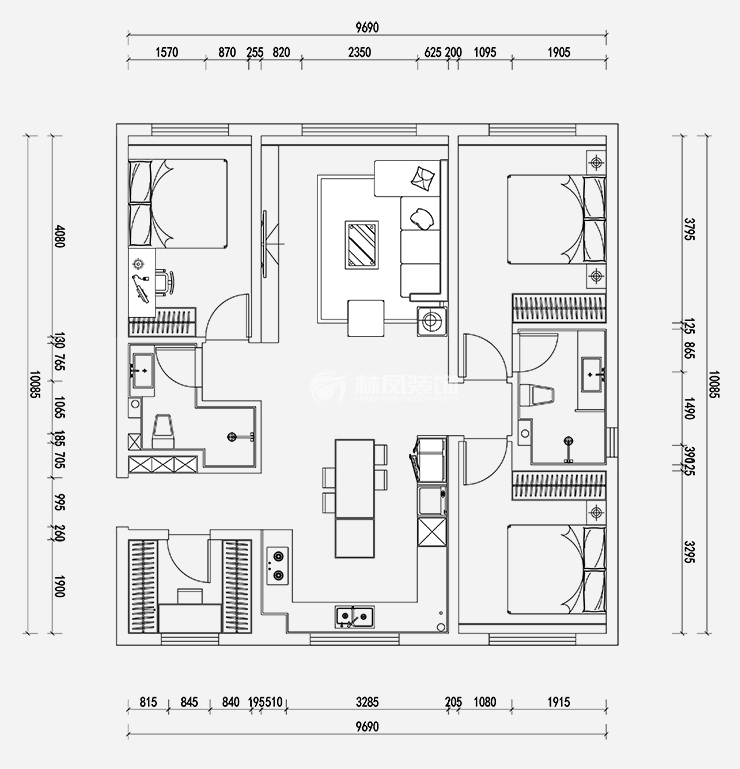
户型图
第1张
S7-刘云静-首创光合城-126平-现代风格-客厅.jpg S7-刘云静-首创光合城-126平-现代风格-客厅2.jpg S7-刘云静-首创光合城-126平-现代风格-客厅3.jpg

现代风格摒弃了传统美式、法式风格稍显复杂的雕刻与装饰,取而代之的是在注重独立的原创设计基础上,采用实色漆套色,革新了色彩的搭配模式。

S7-刘云静-首创光合城-126平-现代风格-餐厅.jpg

餐厅安放在开放的厨房旁边使动线更加简洁。

S7-刘云静-首创光合城-126平-现代风格-女孩房1.jpg S7-刘云静-首创光合城-126平-现代风格-女孩房.jpg S7-刘云静-首创光合城-126平-现代风格-主卧.jpg

两个女孩房都采用了温馨的色调,达到简洁而舒适

S7-刘云静-首创光合城-126平-现代风格-客卫.jpg S7-刘云静-首创光合城-126平-现代风格-主卫.jpg

简单的卫生间拥有完善的日常使用功能。

S7-刘云静-首创光合城-126平-现代风格-衣帽间.jpg S7-刘云静-首创光合城-126平-现代风格-户型图.jpg

案例设计师

林凤设计师

设计师:林凤设计师

从业时间:10年

设计理念:以人为本

预约设计师

算算你家装修多少钱

报名即享丰厚赠品,品质装修

免费报价
咨询热线:400-656-9909
20190221103704574636.jpg

精品设计案例

20180612134930523248.jpg 服务号二维码.jpg