立即预约 立即预约
免费定制整装家居

免费定制整装家居

一站置家 全程无忧 一省到底
hide.png

当前位置: 首页 > 装修案例效果图 > 碧桂园公元九里|现代风格

碧桂园公元九里|现代风格 220平 现代简约风格效果图

收藏
案例风格 现代简约 案例户型 三居 案例面积 220平米
楼盘名称 碧桂园公元九里 设计师 林凤装饰全案设计师 案例类型 儿童房

设计理念:因生活而设计,因设计而完美。

客厅
第1张
第2张
第3张
餐厅
第1张
卧室
第1张
第2张
第3张
卫生间
第1张
儿童房
第1张
休闲区
第1张
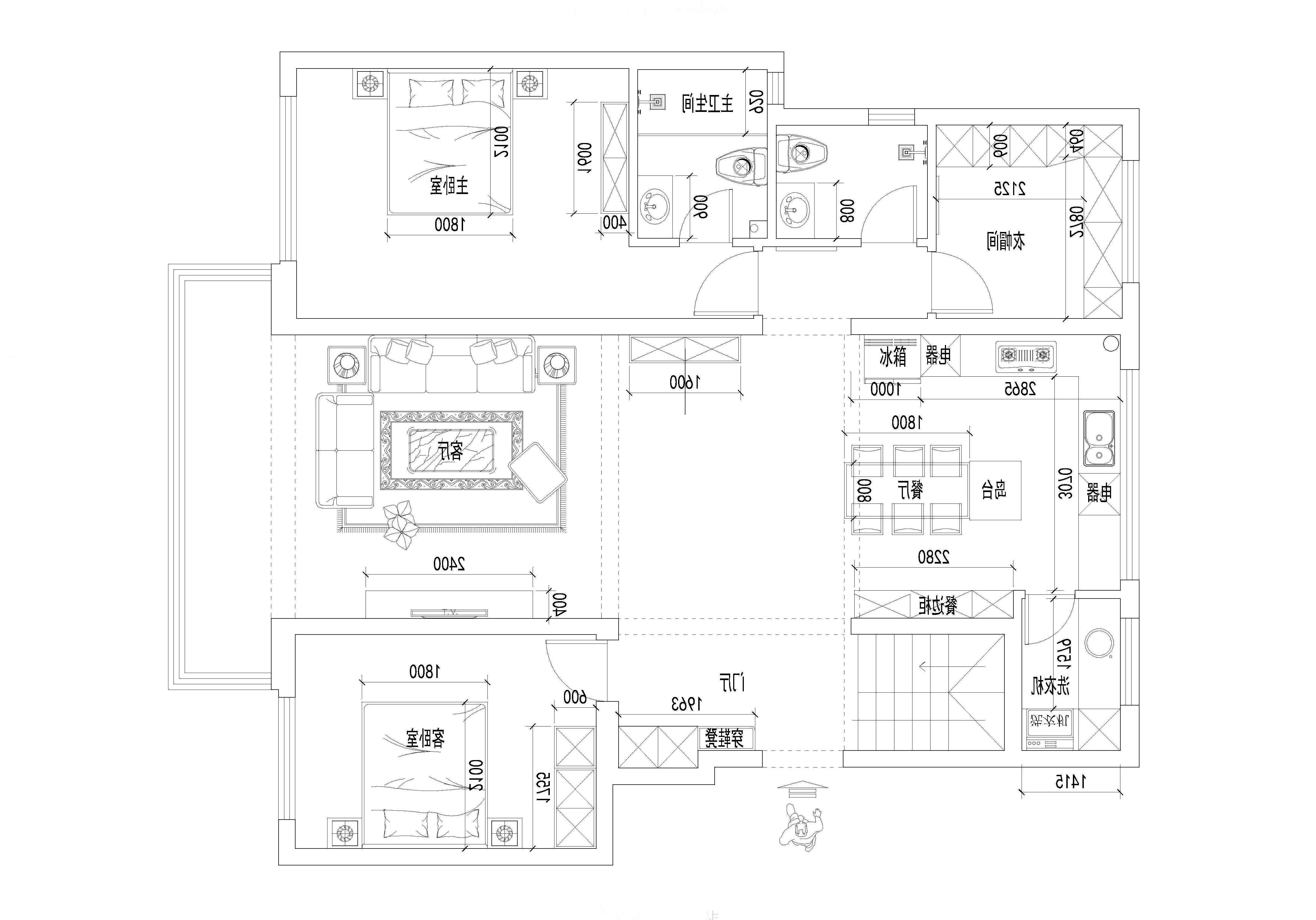
户型图
第1张
碧桂园公元九里-220平-现代风格-客厅1.jpg 碧桂园公元九里-220平-现代风格-沙发.jpg 碧桂园公元九里-220平-现代风格-首图.jpg

大方简洁的现代轻奢风格,沙发选择的是钢琴键式多人沙发,搭配调色小单椅,点缀整体客厅空间。电视背景墙选择了简约的白色理石纹理来进行颜色材质的搭配。在背景右侧嵌入灯带作为个性装饰起到点缀作用,沙发旁用隔断柜起到隔断作用,材质与颜色相呼应,让整体空间看起来更加和谐美观。

碧桂园公元九里-220平-现代风格-餐厅.jpg

餐厅部分延续了厨房灰白色系 ,白色理石的台面使得整个厨房的光线提升一个高度 ,大理石材质的餐桌搭配金属质感的桌腿,使餐厅空间更有质感,更加简约时尚。

碧桂园公元九里-220平-现代风格-次卧.jpg 碧桂园公元九里-220平-现代风格-次卧2.jpg 碧桂园公元九里-220平-现代风格-主卧室.jpg 碧桂园公元九里-220平-现代风格-卫生间.jpg

卫生间采用灰白黑基调的颜色,为客户做到了干湿分离的日常生活需求,洗漱区域和洗衣机连体式,使卫生间有了更多的储物空间,方便业主放日常商品。金属色材质起到亮色点缀作用,突出重点,整个空间的色彩使人舒适,现代简约风格,简约又不失单调。

碧桂园公元九里-220平-现代风格-儿童房.jpg 碧桂园公元九里-220平-现代风格-娱乐区.jpg 碧桂园公元九里-220平-现代风格-平面图.jpg

案例设计师

林凤装饰全案设计师

设计师:林凤装饰全案设计师

从业时间:5年

设计理念:设计源于生活,细节成就品质。

预约设计师

算算你家装修多少钱

报名即享丰厚赠品,享半价装修

免费报价
咨询热线:400-656-9909
20190221103704574636.jpg

精品设计案例

20180612134930523248.jpg 服务号二维码.jpg