立即预约 立即预约
免费定制整装家居

免费定制整装家居

一站置家 全程无忧 一省到底
hide.png

当前位置: 首页 > 装修案例效果图 > 悦景新世界|现代极简

悦景新世界|现代极简 160平 现代简约风格效果图

收藏
案例风格 现代简约 案例户型 三居 案例面积 160平米
楼盘名称 悦景新世界 设计师 林凤设计师 案例类型 改善性住宅

设计理念:设计理念: 本案为极简主义风格,用少即是多的概念,诠释当下人对于审美的深度理解。

客厅
第1张
第2张
第3张
第4张
卧室
第1张
第2张
卫生间
第1张
厨房
第1张
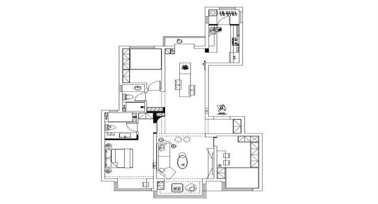
户型图
第1张
悦景新世界-160平-极简风格-电视背景.jpg 悦景新世界-160平-极简风格-沙发背景.jpg 悦景新世界-160平-极简风格-客厅.jpg 悦景新世界-160平-极简风格-首图.jpg

整体色调搭配完全符合当下流行、时尚简约的暖色氛围。用内嵌的踢脚线和极窄边框的窗口门口,勾勒出黑色的线性线条,达到分割各个模块的作用。无主灯的吊顶更能充分布置灯光,在原本纯度较低的墙面上,点缀出明暗变化,用灯光营造氛围。背景墙为了找到和阳台的平面关系,做成了弧度过度,整体协调的前提下,又稍有些与众不同。

悦景新世界-160平-极简风格-南卧.jpg 悦景新世界-160平-极简风格-主卧.jpg

主卧室按照主人的要求,加大了原本的卫生间,取消衣柜的位置,让主卧室完全专注睡眠。衣帽储物则是分配给两个客卧室,客卧都采用了榻榻米的布置形式,加强了储物功能。

悦景新世界-160平-极简风格-主卫.jpg 悦景新世界-160平-极简风格-厨房.jpg 悦景新世界-160平-极简风格-平面.jpg

案例设计师

林凤设计师

设计师:林凤设计师

从业时间:17年

设计理念:人因宅而立,宅因人而存,人宅相扶,感天动地,故不可独信命也。

预约设计师

算算你家装修多少钱

报名即享丰厚赠品,享半价装修

免费报价
咨询热线:400-656-9909
20190221103704574636.jpg

精品设计案例

20180612134930523248.jpg 服务号二维码.jpg