立即预约 立即预约
免费定制整装家居

免费定制整装家居

一站置家 全程无忧 一省到底
hide.png

当前位置: 首页 > 装修案例效果图 > 龙湖双珑原著|现代简约

龙湖双珑原著|现代简约 215平 现代简约风格效果图

收藏
案例风格 现代简约 案例户型 三居 案例面积 215平米
楼盘名称 龙湖双珑原著 设计师 高阳 案例类型 改善性住宅

设计理念:家里常住一家三口,希望各个空间都能有较高的舒适性;在收纳功能上要求空间大,且能做到分门别类;周末和节假日的时候,家里需要接待家人和朋友,需要一个比较大的公共活动空间。

客厅 1.jpg 客厅.jpg 客厅2.jpg

客厅原本只是一个待客空间,设计通过墙体改造,增加了多功能休闲空间,并且合理增加了储物区域,但空间层次感很强。

餐厅1.jpg 餐厅.jpg 卧室1.jpg 卧室.jpg 卧室2.jpg 卧室4.jpg 卧室3.jpg

卧室区域使用了地台做法,使整个空间更加宽敞明亮,延用虚光灯带使空间更加温馨。主卧延续了整个户型优雅冷静的调性,我们内部做了衣帽间满足户主着装需要,使主卧内部形成套间形式。

卫生间2.jpg 卫生间.jpg 卫生间1.jpg

卫生间拆除原本非沉重墙体,重新规划了动线,实现了洗簌、沐浴,如厕真正的三分离模式,收纳合理,使用舒服,真正的做到了互不干扰。

厨房.jpg

U型厨房内部延续,中西双厨,深灰与白色配色,线条干净、没有繁杂的装饰线,无把手柜门让空间更显细腻优雅。

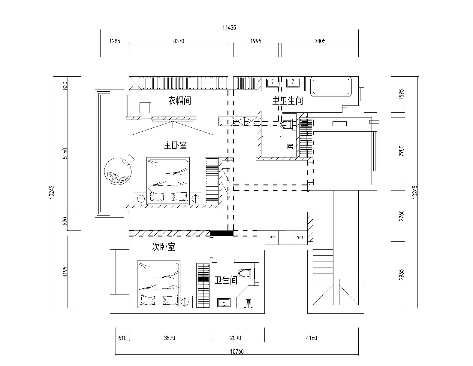
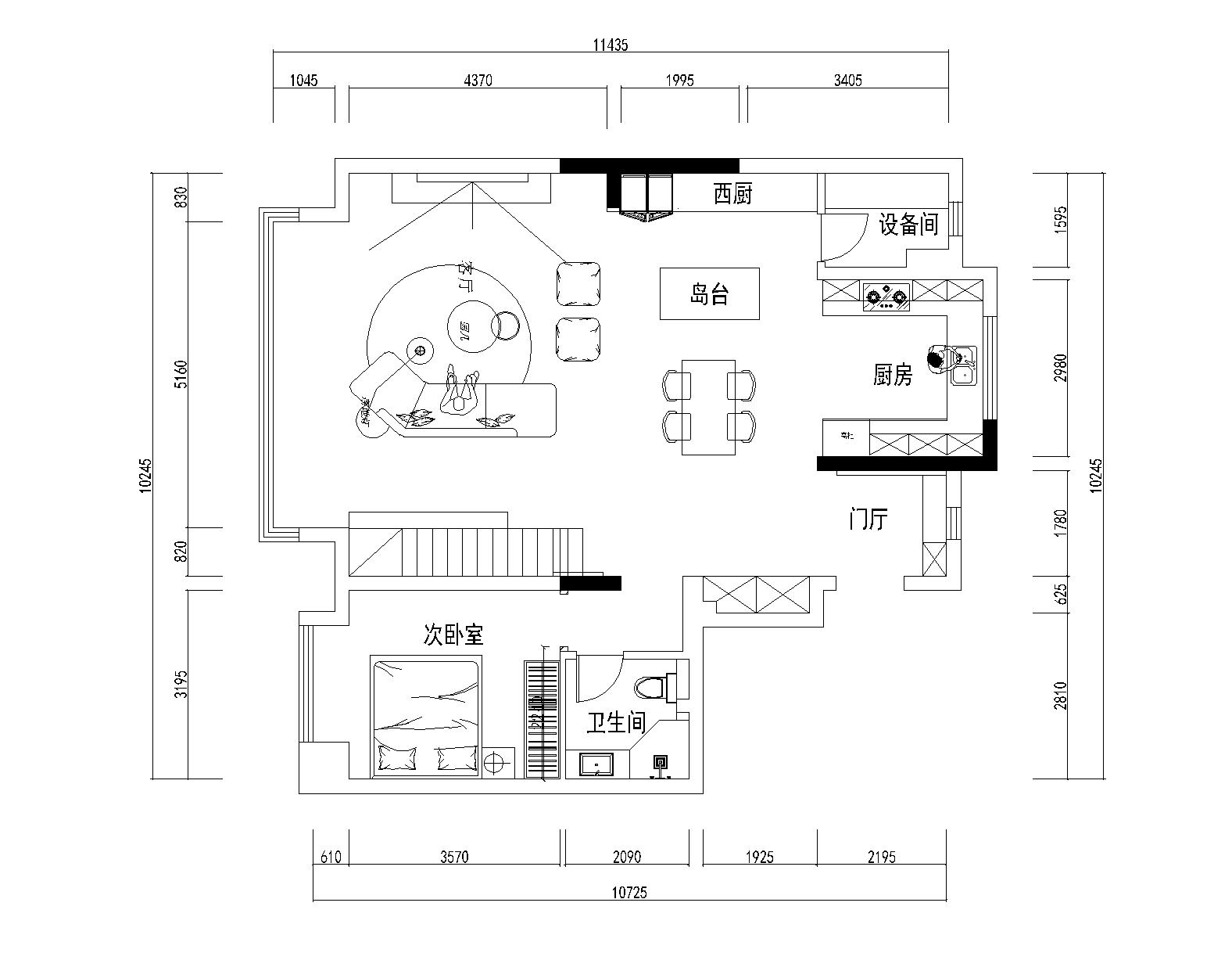
门厅.jpg 过廊.jpg 二层平面布局.jpg 一层平面布局.jpg

案例设计师

高阳

设计师:高阳

从业时间:11年

设计理念:有限空间、无限设计。

预约设计师

算算你家装修多少钱

报名即享丰厚赠品,享半价装修

免费报价
咨询热线:400-656-9909
20190221103704574636.jpg

精品设计案例

20180612134930523248.jpg 服务号二维码.jpg