立即预约 立即预约
免费定制整装家居

免费定制整装家居

一站置家 全程无忧 一省到底
hide.png

当前位置: 首页 > 装修案例效果图 > 康湖茗筑|现代

康湖茗筑|现代 143平 现代简约风格效果图

收藏
案例风格 现代简约 案例户型 三居 案例面积 143平米
楼盘名称 康湖茗筑 设计师 林凤设计师 案例类型 改善性住宅

设计理念:质感的硬装线条与甜蜜的软装色彩相互搭配,展现出甜美温馨的生活环境,洁白的主色仿佛使人进入梦幻之地。

客厅
第1张
第2张
第3张
餐厅
第1张
卧室
第1张
第2张
第3张
卫生间
第1张
衣帽间
第1张
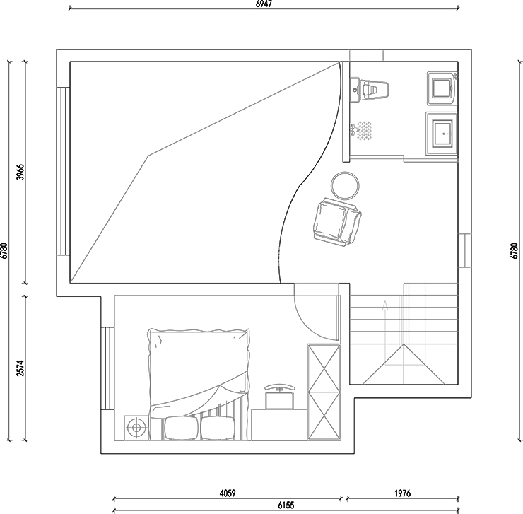
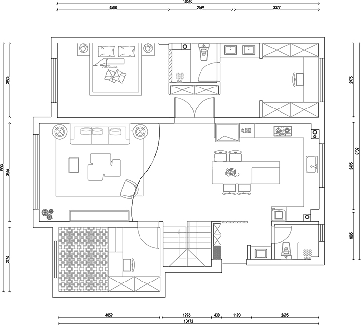
户型图
第1张
第2张
康湖茗筑-120平-现代风格-客厅1.jpg 康湖茗筑-120平-现代风格-客厅2.jpg 康湖茗筑-120平-现代风格-客厅3.jpg

客厅挑空结构,是视觉上更加开阔,吊灯居高临下飘到半空与墙上的明月相呼应,给人一种静谧,安然的景象,使人置身其中精神上愉悦倍感放松。

康湖茗筑-120平-现代风格-餐厅.jpg

餐厅简单的线条浓烈的表现出现代装饰风格极简的特色。 自然元素的餐台,非但没有给人唐突的感觉,反而使人更有一种踏实干净整洁的舒适感。

康湖茗筑-120平-现代风格-卧室2.jpg 康湖茗筑-120平-现代风格-卧室3.jpg 康湖茗筑-120平-现代风格-主卧.jpg

主卧空间较大,对开门左边为卧室,右边为衣帽间和卫生间,给人高级感,整体搭配给人营造静谧的舒适的空间感受。

康湖茗筑-120平-现代风格-卫生间.jpg

通铺瓷砖,提升空间视觉效果,采用干湿分离,将卫生间干湿区进行分离,保证整个卫生间环境的整洁。

康湖茗筑-120平-现代风格-衣帽间.jpg 康湖茗筑-120平-现代风格-二楼户型图.jpg 康湖茗筑-120平-现代风格-一楼户型图.jpg

案例设计师

林凤设计师

设计师:林凤设计师

从业时间:10年

设计理念:以人为本

预约设计师

算算你家装修多少钱

报名即享丰厚赠品,享半价装修

免费报价
咨询热线:400-656-9909
20190221103704574636.jpg

精品设计案例

20180612134930523248.jpg 服务号二维码.jpg