立即预约 立即预约
免费定制整装家居

免费定制整装家居

一站置家 全程无忧 一省到底
hide.png

当前位置: 首页 > 装修案例效果图 > 中瑞北欧云著|现代

中瑞北欧云著|现代 97平 现代简约风格效果图

收藏
案例风格 现代简约 案例户型 三居 案例面积 97平米
楼盘名称 中瑞北欧云著 设计师 林凤设计师 案例类型 改善性住宅

设计理念:利用灯光以及软装相互搭配,享受温馨的家带来的幸福感。

客厅
第1张
餐厅
第1张
第2张
卧室
第1张
第2张
第3张
卫生间
第1张
第2张
第3张
厨房
第1张
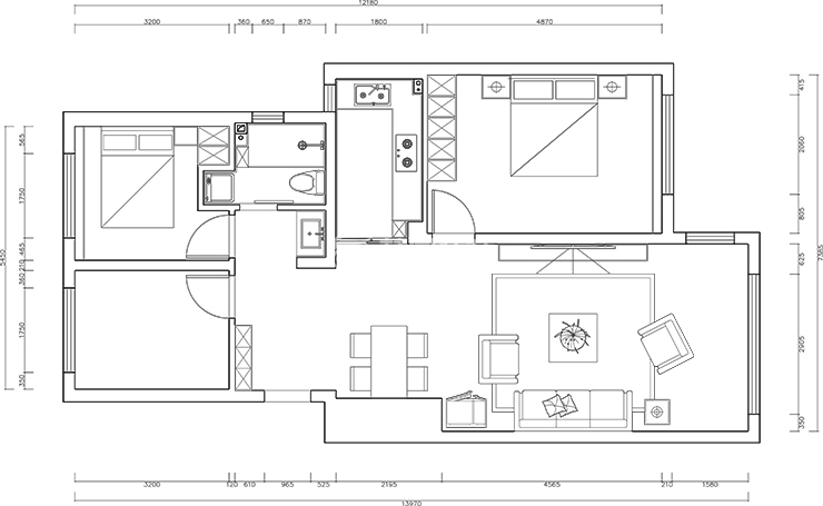
户型图
第1张
中瑞北欧云著-97平-现代风格-客厅.jpg

客厅电视背景墙采用奶咖色调色,木纹平板门与奶咖色搭配,沙发背景墙无颜色与灰色系沙发搭配,给人舒适,温馨的感觉。

中瑞北欧云著-97平-现代风格-餐厅.jpg 中瑞北欧云著-97平-现代风格-客餐厅.jpg

大理石桌面搭配灰色餐椅,给人干净整洁的舒适感。

中瑞北欧云著-97平-现代风格-主卧室.jpg 中瑞北欧云著-97平-现代风格-次卧室.jpg 中瑞北欧云著-97平-现代风格-主卧室.jpg

主卧空间较大,床对面配有梳妆台,橙色作为跳色,给人高级感,整体搭配给人营造静谧的舒适的空间感受。

中瑞北欧云著-97平-现代风格-卫生间.jpg 中瑞北欧云著-97平-现代风格-卫生间干区.jpg 中瑞北欧云著-97平-现代风格-卫生间干区.jpg

通铺瓷砖,提升空间视觉效果,采用干湿分离,将卫生间干湿区进行分离,保证整个卫生间环境的整洁。

中瑞北欧云著-97平-现代风格-厨房.jpg

采用封闭式厨房。隐藏式拉手,木纹色柜体与灰色系AB分色平板门,搭配白色石英石台面,整体搭配出一种舒适高级感。

中瑞北欧云著-97平-现代风格-户型图.jpg

案例设计师

林凤设计师

设计师:林凤设计师

从业时间:9年

设计理念:以人为本,一切围绕着生活来创造更佳的生活品质。

预约设计师

算算你家装修多少钱

报名即享丰厚赠品,享半价装修

免费报价
咨询热线:400-656-9909
20190221103704574636.jpg

精品设计案例

20180612134930523248.jpg 服务号二维码.jpg