立即预约 立即预约
免费定制整装家居

免费定制整装家居

一站置家 全程无忧 一省到底
hide.png

当前位置: 首页 > 装修案例效果图 > 诺德阅香湖|现代轻奢

诺德阅香湖|现代轻奢 111平 轻奢风格效果图

收藏
案例风格 轻奢 案例户型 三居 案例面积 111平米
楼盘名称 诺德阅香湖 设计师 肖婷婷 案例类型 改善性住宅

设计理念:“轻奢”,是一种优雅的生活态度,更是设计展现的一种高度,它饱含奢华的气质内涵,抛弃奢华的外在表现,并使用轻度的体现方式,在优雅上稍加金属修饰,便形成了自然而极致的家具风格。

客厅
第1张
第2张
第3张
餐厅
第1张
第2张
卧室
第1张
第2张
卫生间
第1张
厨房
第1张
书房
第1张
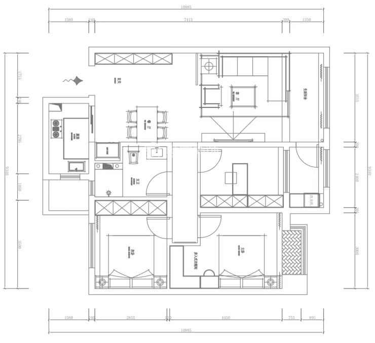
户型图
第1张
诺德阅香湖-111平-轻奢-客餐厅5.jpg 诺德阅香湖-111平-轻奢-客餐厅1.jpg 诺德阅香湖-111平-轻奢-客餐厅3.jpg

客厅与餐厅厨房相连接,让原本比较小的空间显得更大视野更开阔,以便更大限制的利用空间,视觉空间看起来宽阔,灯光效果也很好,使整个客厅简单舒适,简单的金属线条更能体现奢华的内涵。

诺德阅香湖-111平-轻奢-客餐厅4.jpg 诺德阅香湖-111平-轻奢-客餐厅2.jpg

餐厅位置做酒柜,让整体简单的设计不在单调,为整体空间点缀,凸显生活色彩。

诺德阅香湖-111平-轻奢-次卧.jpg 诺德阅香湖-111平-轻奢-主卧.jpg 诺德阅香湖-111平-轻奢-卫生间.jpg

每个空间的合理利用,搭配AB版的瓷片,充分体现空间及效果。

诺德阅香湖-111平-轻奢-厨房.jpg

厨房采用封闭式L型厨房,操作与储物融为一体,更能诠释生活的魅力。

诺德阅香湖-111平-轻奢-书房.jpg 诺德阅香湖-111平-轻奢-户型图.jpg

案例设计师

肖婷婷

设计师:肖婷婷

从业时间:10年

设计理念:持之以恒的学习是设计的来源,责任感是设计的原则,而灵感是设计的升华。

预约设计师

算算你家装修多少钱

报名即享丰厚赠品,享半价装修

免费报价
咨询热线:400-656-9909
20190221103704574636.jpg

精品设计案例

20180612134930523248.jpg 服务号二维码.jpg