立即预约 立即预约
免费定制整装家居

免费定制整装家居

一站置家 全程无忧 一省到底
hide.png

当前位置: 首页 > 装修案例效果图 > 中铁诺德阅香湖|现代风格

中铁诺德阅香湖|现代风格 119平 现代简约风格效果图

收藏
案例风格 现代简约 案例户型 三居 案例面积 119平米
楼盘名称 中铁诺德阅香湖 设计师 慈英雪 案例类型 改善性住宅

设计理念:设计师对于空间的动线与视线所到之处都有着细节统一的设计,特别是对于入户岛台空间,在对景的配色处理上环环相扣,在材质选择上互相穿插,不同材质的融合,碰撞上有趣的色彩,寻找内心永恒的潮流。再极简设计手法的引领下,实现空间、色彩本质的回归。

诺德阅香湖-慈英雪-客餐厅 现代风格 119...jpg 诺德阅香湖-慈英雪-客餐厅 现代风格 119..jpg 诺德阅香湖-慈英雪-客餐厅 现代风格 119-.jpg 首图诺德阅香湖-慈英雪-客餐厅 现代风格 119--.jpg 诺德阅香湖-慈英雪-客餐厅 现代风格 119....jpg

客厅原本只是一个待客空间,设计通过墙体改造,增加了榻榻米多功能休闲空间,之前是3居室,现在巧妙变成3+1空间,并且合理增加了书架、多功能储物、晾晒等空间区域,一个小面积空间,但空间层次感很强。

德阅香湖-慈英雪-客餐厅-现代风格 119平.jpg 诺德阅香湖-慈英雪-次卧 现代风格 119平 (2).jpg 诺德阅香湖-慈英雪-次卧 现代风格 119平.jpg 诺德阅香湖-慈英雪-主卧 现代风格 119...jpg 诺德阅香湖-慈英雪-主卧 现代风格 119.jpg 诺德阅香湖-慈英雪--榻榻米 现代风格 119.jpg

卧室区域是一个独立、私密的系统。主卧延续了整个户型优雅冷静的调性,我们做了整体床箱,使得空间元素简单,但是颇有一番风味。当木地板碰上水泥灰,注定不一般。

诺德阅香湖-慈英雪-客餐厅 .现代风格 119.jpg 诺德阅香湖-慈英雪-主卫 现代风格 119.jpg 诺德阅香湖-慈英雪-客卫 现代风格 119.jpg

卫生间拆除原本非沉重墙体,重新规划了动线,实现了洗簌、机洗、如厕、淋浴真正的四分离模式,收纳合理,使用舒服,真正的做到了互不干扰。

诺德阅香湖-慈英雪-厨房 现代风格 119平.jpg

餐厨区域以岛台为中心形成“回”字大厨房动线概念,厨房门摒弃了传统移门的形式采用了三轨联动推拉门可以将中西厨完美结合,可敞开,可分离,真正的做到了中西合璧,同时完全打开的状态下具备了更优良的通风效果!使的小空间得到完美的利用。

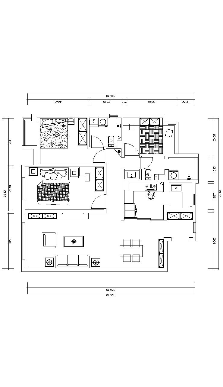
中铁诺德阅香湖.原始布局Model.jpg

案例设计师

慈英雪

设计师:慈英雪

从业时间:8年

设计理念:做有情感的设计,做符合生活方式的设计,无限优化生活空间

预约设计师

算算你家装修多少钱

报名即享丰厚赠品,享半价装修

免费报价
咨询热线:400-656-9909
20190221103704574636.jpg

精品设计案例

20180612134930523248.jpg 服务号二维码.jpg