立即预约 立即预约
免费定制整装家居

免费定制整装家居

一站置家 全程无忧 一省到底
hide.png

当前位置: 首页 > 装修案例效果图 > 万锦红树湾|现代简约

万锦红树湾|现代简约 130平 现代简约风格效果图

收藏
案例风格 现代简约 案例户型 三居 案例面积 130平米
楼盘名称 万锦红树湾 设计师 林凤设计师 案例类型 儿童房

设计理念:年轻人的第一套住房,充满对未来生活的憧憬,平凡而又不同凡响的人生体验,简单有趣又充满生活气息的设计元素,值得让人回味的新派现代风格。

客厅
第1张
第2张
餐厅
第1张
卧室
第1张
卫生间
第1张
第2张
书房
第1张
休闲区
第1张
第2张
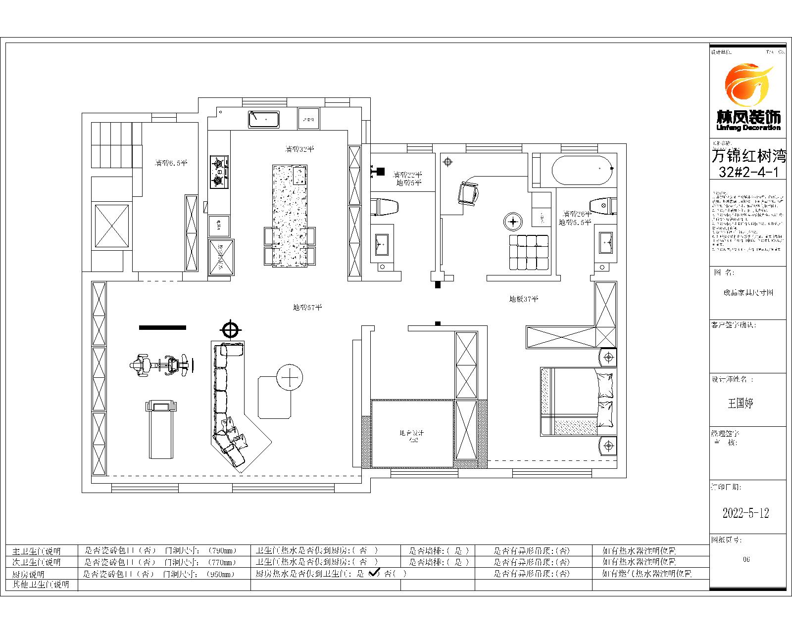
户型图
第1张
客厅.jpg 客厅1.jpg

客厅是进门靠墙的整面墙的一部分,所以怎么分区是关键,将门口鞋柜设计成大多数人都喜欢的样子,剩下交给背景墙,没有过厚的理石,简单的造型,配合投影幕布,即便是很小的客厅,也有大气的感觉了,沙发墙用大幅的画做背景,更艺术更简单。

餐厅.jpg

餐厅是进门能看见的,将岛台设计跟餐桌连在一起,增加餐厅空间感,即使有朋友来也能应付自如,更将早餐等简单的饮食放在岛台上,更好收拾。

卧室.jpg

三个卧室分配明确,也将业主未来的生活起居设计进来,如主卧室步入式衣帽间的简单实用,儿童房书桌和衣柜整合后的美观精致,客卧暖色搭配弥补北侧房间的采光不足,人性化设计在卧室设计时更多的是有储物空间,有休闲空间,有睡眠环境和不同时段空间内感觉的轮转和更替。

卫生间.jpg 卫生间1.jpg

卫生间干湿分离,将洗手盆和洗衣机与坐便和淋浴间隔离开来,更符合即将人口增加的要求,使生活更方便便捷,墙体瓷砖颜色也与整体风格相呼应。

电脑.jpg 电脑.jpg 运动.jpg 万锦红树湾-模型.jpg

案例设计师

林凤设计师

设计师:林凤设计师

从业时间:17年

设计理念:人因宅而立,宅因人而存,人宅相扶,感天动地,故不可独信命也。

预约设计师

算算你家装修多少钱

报名即享丰厚赠品,享半价装修

免费报价
咨询热线:400-656-9909
20190221103704574636.jpg

精品设计案例

20180612134930523248.jpg 服务号二维码.jpg