立即预约 立即预约
免费定制整装家居

免费定制整装家居

一站置家 全程无忧 一省到底
hide.png

当前位置: 首页 > 装修案例效果图 > 伯爵源筑

伯爵源筑 86平 田园风格效果图

收藏
案例风格 田园 案例户型 二居 案例面积 86平米
楼盘名称 伯爵源筑 设计师 林凤设计师 案例类型 婚房

设计理念:本案是典型的美式田园风格,又称乡村美式,自然风格的一种,此风格回归自然,悠闲,舒适的生活宗旨,常运用天然木,石,藤,竹材质等,创造自然,简朴,高雅的氛围。

客厅
第1张
第2张
第3张
第4张
餐厅
第1张
卧室
第1张
第2张
厨房
第1张
门厅
第1张
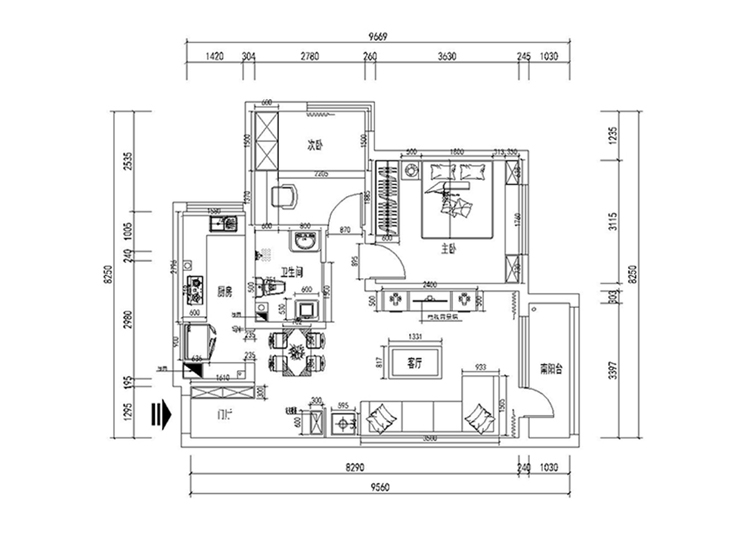
户型图
第1张
  • 案例详情

郑思雨-伯爵源筑-86-美式田园-客厅5.jpg 郑思雨-伯爵源筑-86-美式田园-客厅1.jpg 郑思雨-伯爵源筑-86-美式田园-客厅3.jpg 郑思雨-伯爵源筑-86-美式田园-客厅2.jpg

客厅的造型简单、自然、纯朴,母亲比较喜欢釉面砖所以打破了常理将仿古砖换成釉面砖,颜色偏暖,背景墙部分并没有设计太多造型,仅仅涂刷了一面浅绿色乳胶漆或者壁纸二选一,浅绿色比较清新自然,整个客厅空间的摆放非常有条理,吊灯和茶几沙发等等配饰都非常符合田园风格。

郑思雨-伯爵源筑-86-美式田园-餐厅.jpg

餐厅的形式比较传统,因为餐厅空间也比较局限所以简单摆放餐桌,色调与客厅整体色调相呼应,餐厅墙面并没有以往放装饰画而是为了其实用作用做了几块木隔板,相当实用。

郑思雨-伯爵源筑-86-美式田园-次卧.jpg 主卧.jpg

主卧室造型简洁顶面走工艺石膏线,使空间更加丰富,墙面选择浅米色碎花壁纸,衣柜和床头柜都比较有白油的现代风格的特色,整体色彩温馨自然完全符合当初女主人对卧室效果的要求。次卧的空间大部分家庭都倾向于榻榻米形式,利用度高而且还可以做起居室,榻榻米的柜子选用白油。墙面用浅咖色色壁纸铺满,造型相当的丰富,屋子虽不大但是很温馨。这个无主要作为儿子起居和办公,所以榻榻米形式早适合不过了。

郑思雨-伯爵源筑-86-美式田园-厨房 (1).jpg

厨房按照主人的喜好选择白色吸塑实木柜门,整体橱柜现代风格。厨房为半敞开式厨房,墙面方形花砖非常的有特点,浅绿色相间与空间整体大色调协调一致。

郑思雨-伯爵源筑-86-美式田园-门厅.jpg 郑思雨-伯爵源筑-86-美式田园-户型图.jpg

案例设计师

林凤设计师

设计师:林凤设计师

从业时间:6年

设计理念:一切随心,用心去感悟空间

预约设计师

算算你家装修多少钱

报名即享丰厚赠品,品质装修

免费报价
咨询热线:400-656-9909
20190221103704574636.jpg

精品设计案例

20180612134930523248.jpg 服务号二维码.jpg