立即预约 立即预约
免费定制整装家居

免费定制整装家居

一站置家 全程无忧 一省到底
hide.png

当前位置: 首页 > 装修案例效果图 > 融创唐轩府|现代简约

融创唐轩府|现代简约 86平 现代简约风格效果图

收藏
案例风格 现代简约 案例户型 二居 案例面积 86平米
楼盘名称 融创唐轩府 设计师 林凤设计师 案例类型 改善性住宅

设计理念:本案现代轻奢风格。整体色调以白灰为贯穿,点配钨钢的黑色,石膏线条、钨钢的线条有序的结合,亮面的地砖搭配亮面的钨钢提升空间质感,同时用墙面亚光砖加以综合,打造一个简单而舒适的家。

客厅
第1张
第2张
第3张
餐厅
第1张
卧室
第1张
第2张
卫生间
第1张
第2张
厨房
第1张
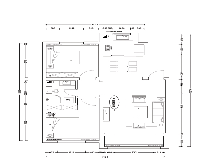
户型图
第1张
融创唐轩府86平-现代轻奢-客厅3.jpg 融创唐轩府86平-现代轻奢-客厅1.jpg 融创唐轩府86平-现代轻奢-客厅2.jpg

客厅说明:亚光砖与亮面钨钢的结合,砖的图案很有艺术感觉,是整个空间的亮点。

融创唐轩府86平-现代轻奢-餐厅.jpg

餐厅说明:餐厅顶部线条是客厅线条的延伸,暖色的装饰画很点题。

融创唐轩府86平-现代轻奢-次卧.jpg 融创唐轩府86平-现代轻奢-主卧.jpg

主卧室:顶部不做吊顶,用线条装饰,干净利落,暖灰亚光的地板很符合空 间的属性,次卧室:次卧于主卧一脉相承,色调以白色为主,搭配暖灰的木色。

融创唐轩府86平-现代轻奢-卫生间1.jpg 融创唐轩府86平-现代轻奢-卫生间2.jpg

卫生间墙面地面采用灰色系做为背景,镜柜特意选了暖色系,提升空间的温馨感。

融创唐轩府86平-现代轻奢-厨房.jpg

厨房:通透玻璃的拉门将厨房与餐厅分开,保证采光也阻隔了油烟,厨房的墙砖与橱柜都采用浅色系,让厨房空间干净明快也有拉大空间的感觉。

融创唐轩府86平-现代轻奢-平面图.jpg

案例设计师

林凤设计师

设计师:林凤设计师

从业时间:17年

设计理念:人因宅而立,宅因人而存,人宅相扶,感天动地,故不可独信命也。

预约设计师

算算你家装修多少钱

报名即享丰厚赠品,享半价装修

免费报价
咨询热线:400-656-9909
20190221103704574636.jpg

精品设计案例

20180612134930523248.jpg 服务号二维码.jpg