立即预约 立即预约
免费定制整装家居

免费定制整装家居

一站置家 全程无忧 一省到底
hide.png

当前位置: 首页 > 装修案例效果图 > 加州花园|简欧风格

加州花园|简欧风格 256平 欧式风格效果图

收藏
案例风格 欧式 案例户型 三居 案例面积 256平米
楼盘名称 加州花园 设计师 林凤设计师 案例类型 改善性住宅

设计理念:业主很喜欢简欧的符号弱化表现形式,能很好的体现出风格倾向又不失庸俗,欧式对理石及线条的体现非常充分,室内大气明快,与现代风格的略微结合 不失现代感

客厅
第1张
第2张
餐厅
第1张
第2张
卧室
第1张
卫生间
第1张
厨房
第1张
过廊
第1张
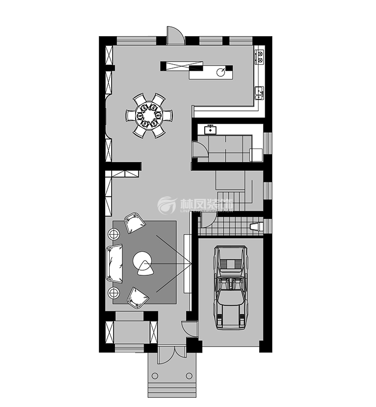
户型图
第1张
第2张
加州花园-256平-简欧-沙发背景.jpg 加州花园-256平-简欧-客厅1.jpg

客厅增加了阳台外扩空间,有了足够的采光,为玄关增加亮度,高挑理石背景,低调奢华,沙发背景装饰画搭配,呼应轻松简洁沙发,为空间增加温度 背景墙之间相互呼应。

加州花园-256平-简欧-餐厅1.jpg 加州花园-256平-简欧-餐厅.jpg

餐厅延续客厅风格,豪华大气 典型的欧式符号 但考虑到中国人的生活习惯 所以摆放圆形餐桌

加州花园-256平-简欧-休息间.jpg

考虑到南方人的生活习惯 所以做了开放式休息室 榻榻米复合客户要求

加州花园-256平-简欧-卫生间.jpg

卫生间采用爵士白大理石纹理 考虑到面积宽敞 所以添加整体浴房

加州花园-256平-简欧-厨房.jpg

厨房有承重柱的问题 所以在柱子中间用岛台优化,让室内感觉更加完整 ,冰箱地位置是业主最喜欢的设计,让厨房增加了很多空间,布局也更合理

加州花园-256平-简欧-二层过廊.jpg 加州花园-256平-简欧-平面图1.jpg 加州花园-256平-简欧-平面图2.jpg

案例设计师

林凤设计师

设计师:林凤设计师

从业时间:17年

设计理念:人因宅而立,宅因人而存,人宅相扶,感天动地,故不可独信命也。

预约设计师

算算你家装修多少钱

报名即享丰厚赠品,品质装修

免费报价
咨询热线:400-656-9909
20190221103704574636.jpg

精品设计案例

20180612134930523248.jpg 服务号二维码.jpg