立即预约 立即预约
免费定制整装家居

免费定制整装家居

一站置家 全程无忧 一省到底
hide.png

当前位置: 首页 > 装修案例效果图 > 华润公元九里|现代极简

华润公元九里|现代极简 276平 现代简约风格效果图

收藏
案例风格 现代简约 案例户型 三居 案例面积 276平米
楼盘名称 华润公元九里 设计师 林凤设计师 案例类型 改善性住宅

设计理念:不惑之年,人总是需要些沉淀,回归初心,年轻时的向往和追求,随着时间的推移,生活的洗礼,终将回归初心,因为在年轻的时候 ,在自己的内心已经埋下种子

客厅
第1张
第2张
餐厅
第1张
卧室
第1张
第2张
卫生间
第1张
厨房
第1张
休闲区
第1张
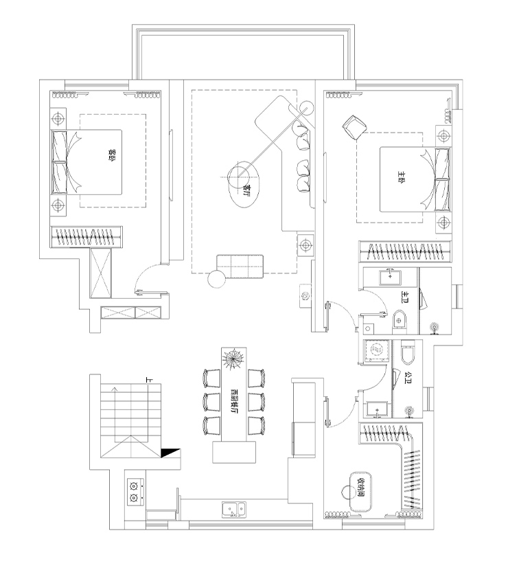
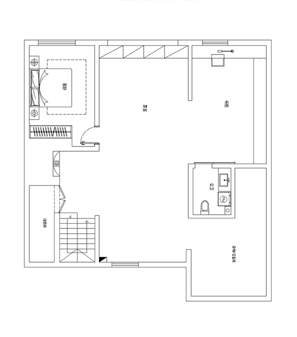
户型图
第1张
第2张
华润公元九里-276平-现代极简-客厅.jpg 华润公元九里-276平-现代极简-客厅1.jpg

客厅增加了阳台外扩空间,有了足够的采光,阳台整体是木作地台,背景墙简单大气,线条几何化,材质以木饰面为主 风格与普通人有明显去呗,低调奢华,沙发背景禅意木饰面搭配,呼应轻松简洁沙发,为空间增加温度 背景墙之间相互呼应。

华润公元九里-276平-现代极简-餐厅.jpg

餐厅延续客厅风格,对整个空间的元素符号要高度统一,由于格局硬性要求 ,餐桌摆放在餐厅中间 与楼梯间直接的墙体去掉 ,增加视野

华润公元九里-276平-现代极简-客房.jpg 华润公元九里-276平-现代极简-主人房.jpg

考虑整个空间的变化,把背景墙与天花通过线性灯完美衔接,无主灯设计是其内在表现

华润公元九里-276平-现代极简-卫生间.jpg

卫生间采用爵士白大理石纹理 考虑到面积宽敞 ,以明快的既视感把握整体氛围,不会画蛇添足

华润公元九里-276平-现代极简-厨房.jpg

厨根据客户要求 采用中西厨分开布局,由于中厨的操作问题 所以加以拉门用老阻隔油烟,整体风格上与餐厅浑然一体

华润公元九里-276平-现代极简-影音厅.jpg 华润公元九里-276平-现代极简-阁楼平面图.jpg 华润公元九里-276平-现代极简-一层平面图.jpg

案例设计师

林凤设计师

设计师:林凤设计师

从业时间:17年

设计理念:人因宅而立,宅因人而存,人宅相扶,感天动地,故不可独信命也。

预约设计师

算算你家装修多少钱

报名即享丰厚赠品,享半价装修

免费报价
咨询热线:400-656-9909
20190221103704574636.jpg

精品设计案例

20180612134930523248.jpg 服务号二维码.jpg