立即预约 立即预约
免费定制整装家居

免费定制整装家居

一站置家 全程无忧 一省到底
hide.png

当前位置: 首页 > 装修案例效果图 > 浦江御品|现代轻奢

浦江御品|现代轻奢 150平 轻奢风格效果图

收藏
案例风格 轻奢 案例户型 三居 案例面积 150平米
楼盘名称 浦江御品 设计师 孙安强 案例类型 改善性住宅

设计理念:本案设计风格为现代简约风格,屋内采用大量硬包护墙板搭配原木色更显现代简约。

客厅
第1张
第2张
餐厅
第1张
卧室
第1张
第2张
卫生间
第1张
第2张
厨房
第1张
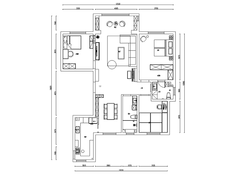
户型图
第1张
浦江御品-150平-轻奢风格-客厅.jpg 浦江御品-150平-轻奢风格-背景墙.jpg

客厅采用的是暖灰色的地砖与原木色的护墙板,背景墙采用隐藏门设计,凸显的客厅开阔舒适。

浦江御品-150平-轻奢风格-餐厅.jpg

餐厅摆放的是四人位餐桌,侧面是全屋定制的酒柜采用的玻璃门 ,与餐厅相互搭配。

浦江御品-150平-轻奢风格-次卧.jpg 浦江御品-150平-轻奢风格-主卧.jpg

主卧拜访1.9米×2.1米现代双人床,床头采用硬包护墙板与壁灯,点缀色为热力橙色。

浦江御品-150平-轻奢风格-主卫生间.jpg 浦江御品-150平-轻奢风格-次卫.jpg

主卫生间采用定制的浴室柜,业主要求尽量增加卫生间储物能力,所以定制了大容量的储物柜。

浦江御品-150平-轻奢风格-厨房.jpg

厨房采用的是u型橱柜空间利用性达到最大 ,超大的台面可摆放的物也更多,AB版的橱柜灰色与白色的搭配也是当今最流行的搭配。

浦江御品-150平-轻奢风格-平面图.jpg

案例设计师

孙安强

设计师:孙安强

从业时间:10年

设计理念:生活是创意的来源,创意源于文化,创意源于自己

预约设计师

算算你家装修多少钱

报名即享丰厚赠品,品质装修

免费报价
咨询热线:400-656-9909
20190221103704574636.jpg

精品设计案例

20180612134930523248.jpg 服务号二维码.jpg