立即预约 立即预约
免费定制整装家居

免费定制整装家居

一站置家 全程无忧 一省到底
hide.png

当前位置: 首页 > 装修案例效果图 > 澳海白沙岛|现代简约

澳海白沙岛|现代简约 200平 现代简约风格效果图

收藏
案例风格 现代简约 案例户型 四居 案例面积 200平米
楼盘名称 澳海白沙岛 设计师 郑婷婷 案例类型 改善性住宅

设计理念:这个房子住边环境很好,临公园,房子带个小院子,设计以自然舒适的感觉为主,简约的生活方式,增加实用趣味性。

客厅
第1张
第2张
卧室
第1张
第2张
卫生间
第1张
厨房
第1张
书房
第1张
过廊
第1张
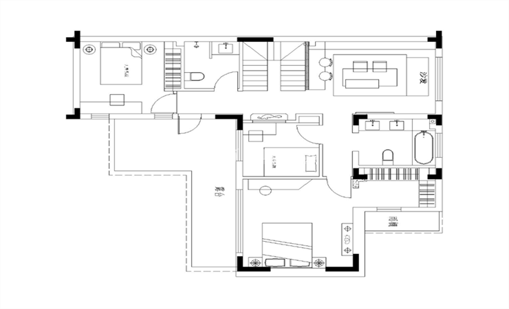
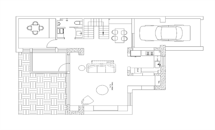
户型图
第1张
第2张
客厅.jpg 客厅1.jpg

客厅的空间是长方形,宽度较窄,开间的视觉效果比较宽敞。在选择家具的时候选择分体沙发让空间不沉闷。电视背景墙用收纳柜做设计,增加阅读区,也可以隐藏孩子的玩具。地面通铺木质地板,白色和木色和谐搭配。布艺沙发和白色的纱帘,整体氛围休闲而温馨,简约美观。

次卧室.jpg 主卧.jpg

主卧室功能齐全,配有卫生间及衣帽间。在原始简约的设计中增加了法式线条的设计,转角部分的颜色增加了空间的延伸感,和窗帘颜色统一色调,相互呼应。将柔美进行到底。

卫生间.jpg

主卫有窗户,通风采光都很好。设计了双手盆,早上一起洗漱,温馨浪漫。浴缸设计为嵌入式,方便以后打理卫生。大板砖的设计干净整洁。

厨房.jpg

厨房的空间不是很大,敞开式给人视觉效果更开阔些,用浅色的墙面和白色的柜子,提亮空间。深色橱柜台面做为过度,增加立体感。

书房.jpg 玄关.jpg 二层平面.png 一层平面.png

案例设计师

郑婷婷

设计师:郑婷婷

从业时间:9年

设计理念:用心与住宅对话,交织出住宅中的灵魂所属

预约设计师

算算你家装修多少钱

报名即享丰厚赠品,品质装修

免费报价
咨询热线:400-656-9909
20190221103704574636.jpg

精品设计案例

20180612134930523248.jpg 服务号二维码.jpg