立即预约 立即预约
免费定制整装家居

免费定制整装家居

一站置家 全程无忧 一省到底
hide.png

当前位置: 首页 > 装修案例效果图 > 富海澜湾半岛

富海澜湾半岛 64平 美式风格效果图

收藏
案例风格 美式 案例户型 一居 案例面积 64平米
楼盘名称 富海澜湾半岛 设计师 林凤设计师 案例类型 婚房

设计理念:本案主要以清新、时尚的现代美式风格为主,对于居住空间小户型,设计方案比较追求实用和收纳还有空间的虚实结合,无处不体现出了和其他装修风格的不同,而现代美式风格不仅仅可以满足大空间的丰富造型对于这种小户型依然百试不厌体现出另一种美式的温馨和时尚赶,独一无二。

客厅
第1张
第2张
第3张
餐厅
第1张
卫生间
第1张
第2张
厨房
第1张
门厅
第1张
第2张
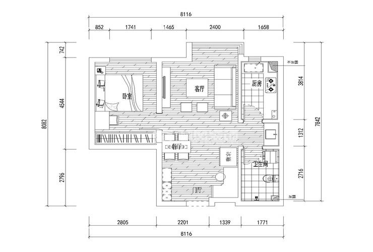
户型图
第1张
  • 案例详情

富海澜湾半岛-64平-简美风格-客厅2.jpg 富海澜湾半岛-64平-简美风格-客厅.jpg 富海澜湾半岛-64平-简美风格-客厅1.jpg

客厅最明显的就是美式元素的造型,空间不是很大所以客厅的电视背景墙没做很繁琐的造型、沙发背景墙的造型加了几根石膏平线用作装饰,墙面大面积涂刷暖灰色硅藻泥。家具和装饰配饰,无处不体现出美式的元素,清新、素雅大气,完全彰显出现代美式风格的魅力。

富海澜湾半岛-64平-简美风格-餐厅.jpg

餐厅没有华丽的背景墙,运用了最具美式风格特色的装饰画和挂坠来作为装饰,原木色的餐桌桌面是原木与石材结合的餐椅使整体看上去很时尚,餐桌运用了软包从舒适度角度上来讲非常实用颜色也比较好打理,餐厅选择了比较有个性的哑光黑色喷漆的吊灯,比较有现代的感觉。

富海澜湾半岛-64平-简美风格-卫生间2.jpg 富海澜湾半岛-64平-简美风格-卫生间1.jpg

卫生间的使用率也是很高的,对于墙地砖的搭配和选择抛弃了以往传统的釉面砖,本案选择了非常时尚的哑光布纹砖的搭配,给人感觉更加时尚大气。这个户型的卫生间是干湿分离,干区实用了非常洋气的仿古花砖,非常的独特和时尚再搭配黑白色浴室柜更加得到业主疯狂的喜爱。

富海澜湾半岛-64平-简美风格-厨房.jpg

厨房的使用率是很高的区域,白色混油吸塑板材的橱柜加上石英石的台板,搭配哑光的浅灰色墙砖非常的有美式风格的特点,地面的地砖使整个空间再次提高档次,白色的吊顶,看上去,使整个空间更加干净清新。

富海澜湾半岛-64平-简美风格-门厅.jpg 富海澜湾半岛-64平-简美风格-门厅.jpg 富海澜湾半岛-64平-简美风格-平面布局.jpg

案例设计师

林凤设计师

设计师:林凤设计师

从业时间:6年

设计理念:一切随心,用心去感悟空间

预约设计师

算算你家装修多少钱

报名即享丰厚赠品,享半价装修

免费报价
咨询热线:400-656-9909
20190221103704574636.jpg

精品设计案例

20180612134930523248.jpg 服务号二维码.jpg