立即预约 立即预约
免费定制整装家居

免费定制整装家居

一站置家 全程无忧 一省到底
hide.png

当前位置: 首页 > 装修案例效果图 > 格林观堂|法式轻奢风格

格林观堂|法式轻奢风格 280平 轻奢风格效果图

收藏
案例风格 轻奢 案例户型 三居 案例面积 280平米
楼盘名称 格林观堂 设计师 林凤设计师 案例类型 改善性住宅

设计理念:三口之家,喜欢法式轻奢风格。

客厅
第1张
餐厅
第1张
卧室
第1张
第2张
卫生间
第1张
第2张
第3张
厨房
第1张
书房
第1张
过廊
第1张
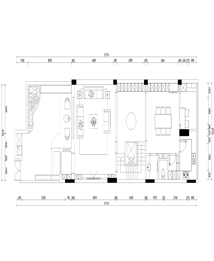
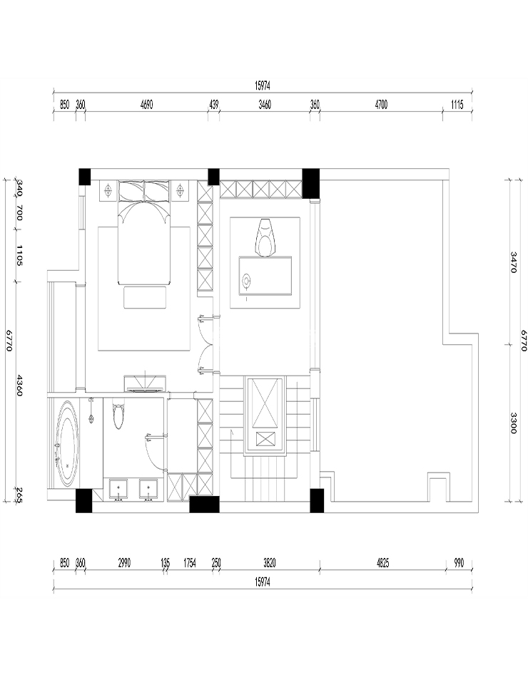
户型图
第1张
第2张
格林观堂-280平-法式轻奢风格-客厅.jpg

法式风格是浪漫、精致而优雅的,当法式与现代轻奢的设计相碰撞,从整体设计来说,主要是突出对称布局,注重细节之处的讲究,雕饰华丽,以亮色作为点缀,增添几分生机趣意。

格林观堂-280平-法式轻奢风格-餐厅.jpg

餐厅空间的线条直观明朗,设计繁复而又精简,没有多余的家具,以独特的美学观念塑造华美的优雅感,水晶吊灯极为精美,浪漫而精致,单独的空间,与客厅空间若即若离,注重线条的流畅,追求简洁自然的美,既时尚又舒适。

格林观堂-280平-法式轻奢风格-主卧.jpg 格林观堂-280平-法式轻奢风格-主卧2.jpg

现下流行的风格,就是改良了新古典的设计,去除了传统法式复杂奢侈的装饰造型,床头背景墙的色彩主要都是白色,虽说法式轻奢风格的整体基调以浅色为主,但也不能少了深浅色的对比,适当亮色软装元素的搭配,让空间的层次感更加丰富。

格林观堂-280平-法式轻奢风格-主卫2.jpg 格林观堂-280平-法式轻奢风格-主卫.jpg 格林观堂-280平-法式轻奢风格-干湿分离.jpg

卫生间采用的是黄色地砖与绿色墙砖相结合,整体效果更显简约温馨,美观。以华丽的装饰、浓烈的色彩、精美的造型达到雍容华贵的装饰效果。

格林观堂-280平-法式轻奢风格-厨房.jpg

烤漆橱柜自带高贵气质,柔光烤漆橱柜拉维尔的设计灵感来源于对大自然天然的色彩感悟,把最温柔的白色系搬运到橱柜中,勾勒出一个淡雅飘逸 轻柔宁静的厨房。

格林观堂-280平-法式轻奢风格-书房.jpg 格林观堂-280平-法式轻奢风格-电梯间.jpg 格林观堂-280平-法式轻奢风格-户型图二层.jpg 格林观堂-280平-法式轻奢风格-户型图一层.jpg

案例设计师

林凤设计师

设计师:林凤设计师

从业时间:9年

设计理念:以人为本,一切围绕着生活来创造更佳的生活品质。

预约设计师

算算你家装修多少钱

报名即享丰厚赠品,享半价装修

免费报价
咨询热线:400-656-9909
20190221103704574636.jpg

精品设计案例

20180612134930523248.jpg 服务号二维码.jpg