立即预约 立即预约
免费定制整装家居

免费定制整装家居

一站置家 全程无忧 一省到底
hide.png

当前位置: 首页 > 装修案例效果图 > 阳光100|现代简约

阳光100|现代简约 160平 现代简约风格效果图

收藏
案例风格 现代简约 案例户型 三居 案例面积 160平米
楼盘名称 阳光100 设计师 孙安强 案例类型 改善性住宅

设计理念:本案采用现代简约风格设计,重点突出简约风格的色彩设计,外观简洁,功能性强,没有过分的装饰,不感到压抑,不用复杂的造型让人感觉凌乱,一切以功能出发,但又富有朝气的生活气息,让人感到回家舒适放松。

客厅
第1张
第2张
餐厅
第1张
卧室
第1张
第2张
第3张
卫生间
第1张
第2张
第3张
厨房
第1张
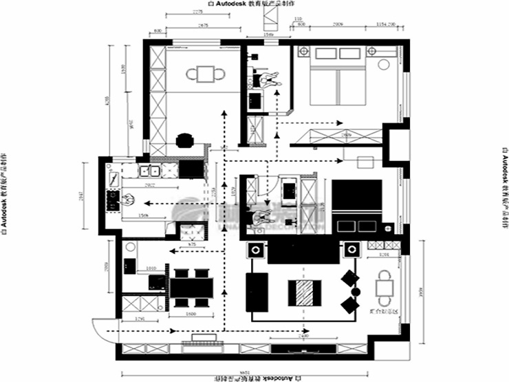
户型图
第1张
阳光100-160平-现代简约风格-客厅.jpg 阳光100-160平-现代简约风格-首图.jpg

采用黑白灰为主调,墙面、顶棚、地面等均已简洁的造型、纯洁的质地为特征,顶棚采用圈棚加筒灯,电视背景墙采用虚光增加意境,而且柜体不做落地,好打理。

阳光100-160平-现代简约风格-餐厅.jpg

餐厅餐桌紧靠墙边,不耽误人行走的同时将空间更加扩大。设置餐边柜可以将一些水壶、茶杯放置其中更实用。餐桌上面放吊灯,人在吃饭时能够享受到足够的照明,而且简单大方的效果符合空间的整体风格,与其他空间相呼应。

阳光100-160平-现代简约风格-卧室3.jpg 阳光100-160平-现代简约风格-卧室2.jpg 阳光100-160平-现代简约风格-卧室.jpg

满足个人使用功能,床头两边采用悬空的床头柜,好打理,床头设置简约的线条灯光,躺在床上感觉更加有氛围。简洁的柜台设计和灯具,利用灯线和筒灯增加氛围感。

阳光100-160平-现代简约风格-卫生间2.jpg 阳光100-160平-现代简约风格-卫生间.jpg 阳光100-160平-现代简约风格-卫生间3.jpg

卫生间,定制悬空洗手盆,在打扫的同时没有卫生死角。白灰色墙砖不仅体现出简约式风格的优雅,而且也会将整个卫生间的光线显得更加明亮。

阳光100-160平-现代简约风格-厨房.jpg

厨房采用U型厨房,分为中西厨,吊柜设计让厨房储存空间增多,冰箱采用嵌入式更加节省空间而且更好看、规整。

阳光100-160平-现代简约风格-户型图.jpg

案例设计师

孙安强

设计师:孙安强

从业时间:10年

设计理念:生活是创意的来源,创意源于文化,创意源于自己

预约设计师

算算你家装修多少钱

报名即享丰厚赠品,享半价装修

免费报价
咨询热线:400-656-9909
20190221103704574636.jpg

精品设计案例

20180612134930523248.jpg 服务号二维码.jpg